Residential Development
A superb development opportunity comprising of a detached house and 2x building plots.
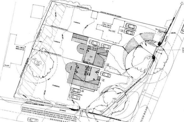
A mature and private site which extends to circa 0.5 acres.
It includes an existing traditional family home which currently offers three bedrooms, bathroom, lounge and dining room, kitchen and garage. The property is ready for modernisation and offers great potential for extension (subject to planning permission).
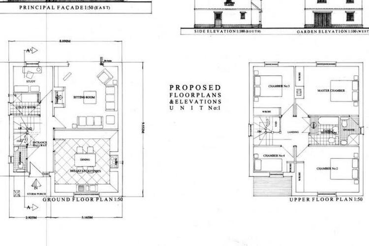
Planning permission for the erection of 2x Detached houses (one x 4 bed and one x 5 bed)
The new homes will offer a pleasing contemporary layout coupled with a superb location. Plot 1 is circa 1540 GEFA and Plot 2 circa 2185 GEFA inc garage. (Measurements taken from architect drawings and express gross external floor area)
Well located for local amenities. country walks and having great transport links.
Planning Ref 22/00263/FUL.
All mains services are believed to be connected to the site.
O2, EE, Three and Vodafone are available in this location.
BT and Sky are available in this location.
Standard 5 mbps. Superfast 76 mbps.
Cavity wall filled cavity. Information taken from EPC.
These sales details are awaiting vendor approval.
Freehold. Vacant possession upon completion.
- Electric Supply: Mains Supply
- Water Supply: Mains Supply
- Sewerage Arrangements: Mains Supply
Garage, Driveway
Auction Details
The sale of this property will take place on the stated date by way of Auction Event and is being sold under an Unconditional sale type.
Binding contracts of sale will be exchanged at the point of sale.
All sales are subject to SDL Property Auctions Buyers Terms. Properties located in Scotland will be subject to applicable Scottish law.
Auction Deposit and Fees
The following deposits and non- refundable auctioneers fees apply:
• 5% deposit (subject to a minimum of £5,000)
• Buyers Fee of 4.8% of the purchase price (subject to a minimum of £6,000 inc. VAT).
The Buyers Fee does not contribute to the purchase price, however it will be taken into account when calculating the Stamp Duty Land Tax for the property (known as Land and Buildings Transaction Tax for properties located in Scotland), because it forms part of the chargeable consideration for the property.
There may be additional fees listed in the Special Conditions of Sale, which will be available to view within the Legal Pack. You must read the Legal Pack carefully before bidding.
Additional Information
For full details about all auction methods and sale types please refer to the Auction Conduct Guide which can be viewed on the SDL Property Auctions home page.
This guide includes details on the auction registration process, your payment obligations and how to view the Legal Pack (and any applicable Home Report for residential Scottish properties).
Guide Price & Reserve Price
Each property sold is subject to a Reserve Price. The Reserve Price will be within + or - 10% of the Guide Price. The Guide Price is issued solely as a guide so that a buyer can consider whether or not to pursue their interest. A full definition can be found within the Buyers Terms.





















