Commercial Property
A substantial pair of period buildings offering over 26,000 square foot of accommodation.
Internally, the buildings have been interconnected to provide one large educational facility which incorporates a mixture of open plan and cellular rooms, welfare facilities and ancillary storage together with a large function hall that features a balcony
looking over.
Both the Fraser Noble Building and 2 University Road are three storey in design and have the benefit of additional accommodation via a basement.
Externally, the property has the benefit of on-site car parking facilities located to the rear which is accessed via University Road.
A prime position on London Road, located close to The City Centre, Train Station and Victoria Park and well placed for both University of Leicester and DeMontfort University.
Scope for numerous uses, subject to any required consents.
Offered Freehold with Vacant Possession.
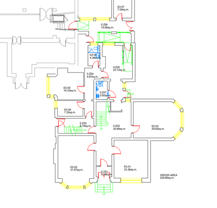
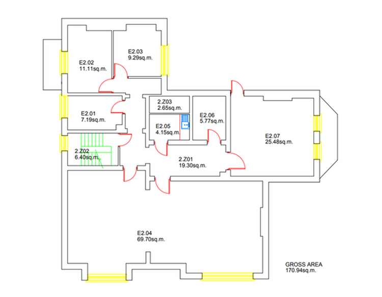
Fraser Noble Building:
Ground Floor 830 sqm / 8,931 sqft
First Floor 371 sqm / 3,993 sqft
Balcony 44 sqm / 470 sqft
Second Floor 333 sqm / 3,584 sqft
Basement 168 sqm / 1,805 sqft
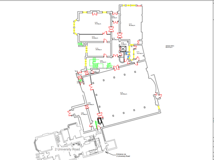
2 University Road
Ground Floor 237 sqm / 2,549 sqft
First Floor 174s sqm / 1,881 sqft
Second Floor 171 sqm / 1,840 sqft
Basement 91 sqm / 979 sqft
Car Parking to rear with access off University Road.
These sales details are awaiting vendor approval.
Freehold. Vacant possession upon completion.
Auction Details
The sale of this property will take place on the stated date by way of Auction Event and is being sold under and Unconditional sale type.
Binding contracts of sale will be exchanged at the point of sale.
All sales are subject to SDL Property Auctions Buyers Terms. Properties located in Scotland will be subject to applicable Scottish law.
Auction Deposit and Fees
The following deposits and non- refundable auctioneers fee apply:
• 10% deposit (subject to a minimum of £5,000)
• Buyers Fee of 1.2% of the purchase price (subject to a minimum of £1,500 inc. VAT)
The Buyers Fee does not contribute to the purchase price, however it will be taken into account when calculating the Stamp Duty Land Tax for the property (known as Land and Buildings Transaction Tax for properties located in Scotland), because it forms part of the chargeable consideration for the property.
There may be additional fees listed in the Special Conditions of Sale, which will be available to view within the Legal Pack. You must read the Legal Pack carefully before bidding.
Additional Information
For full details about all auction methods and sale types please refer to the Auction Conduct Guide which can be viewed on the SDL Property Auctions home page.
This guide includes details on the auction registration process, your payment obligations and how to view the Legal Pack (and any applicable Home Report for residential Scottish properties).
Guide Price & Reserve Price
Each property sold is subject to a Reserve Price. The Reserve Price will be within + or - 10% of the Guide Price. The Guide Price is issued solely as a guide so that a buyer can consider whether or not to pursue their interest. A full definition can be found within the Buyers Terms.
















