Commercial Property
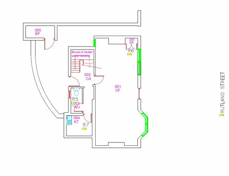
A two-storey end of terrace former office building. The accommodation comprises spacious main office with separate kitchen and wc and rear courtyard. The first floor accommodation comprises two separate offices, landing with wc off.
We feel the accommodation could be reconfigured to a residential dwelling or two apartments subject to applying and being granted planning approval. Prospective buyers must make all necessary independent enquiries in this respect for their specific, intended use prior to placing their bid, as this will be binding.
The property is located along Rutland Street close to the junction with Smedley Street in Matlock. The area comprises several local retailers along with several converted buildings providing residential accommodation.
Matlock has a resident population of 10,000 persons which is increasing with significant housing development. Matlock is located 9 miles southwest of Chesterfield, 19 miles north of Derby and 20 miles south of Sheffield. Matlock is located on the A6 a major arterial route through the county with an estimated catchment of around 400,000 people within 15 miles.
That the gas supply to the property has been disconnected. Prospective buyers are advised to make all necessary independent enquiries prior to placing their bid as this will be binding.
Freehold.
Auction Details
The sale of this property will take place on the stated date by way of Auction Event and is being sold as Unconditional with Fixed Fee (England and Wales).
Binding contracts of sale will be exchanged at the point of sale.
All sales are subject to SDL Property Auctions’ Buyers Terms.
Auction Deposit and Fees
The following deposits and non- refundable auctioneer’s fee apply:
• 10% deposit (subject to a minimum of £5,000)
• Buyer’s Fee of £1074 inc. VAT
The Buyer’s Fee does not contribute to the purchase price and will be considered as part of the chargeable consideration for the property in the calculation of stamp duty liability.
There may be additional fees listed in the Special Conditions of Sale, which will be available to view within the Legal Pack. You must read the Legal Pack carefully before bidding.
Additional Information
For full details about all auction methods and sale types please refer to the Auction Conduct Guide which can be viewed on the SDL Property Auctions’ home page.
This guide includes details on the auction registration process, your payment obligations and how to view the Legal Pack.
Guide Price & Reserve Price
Each property sold is subject to a Reserve Price. The Reserve Price will be within + or – 10% of the Guide Price. The Guide Price is issued solely as a guide so that a buyer can consider whether or not to pursue their interest. A full definition can be found within the Buyers Terms.



