Retail Property (High Street)
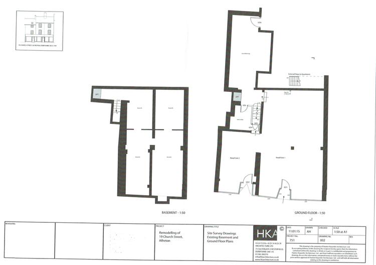
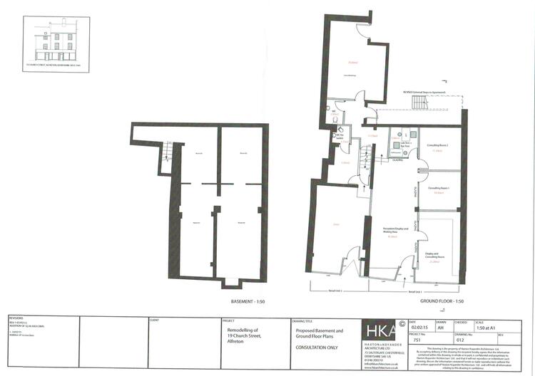
A three storey sales shop with extensive offices/living accommodation over with the benefit of lock up garage storage and customer parking to the rear situated in a popular trading location. Comprising two sales area 114.92 square metres (1236 square feet) with office to rear 6.87 square metres (74 square feet) and rear showroom 31.49 square metres (339 square feet) and storage cellar. First floor offices/ living accommodation over two storeys. Externally, storage 333 sq ft with garage/workshop 530 sq ft.
The property is situated on Church Street, a secondary shopping area, close to the junction with Chesterfield Road/High Street/King Street, on the western periphery of the centre of the large town of Alfreton. The town provides a wide range of shops, schools and has regular bus services to Nottingham, Derby and Mansfield, there is also a rail link to Sheffield and London and the town is conveniently located close to the A38 dual carriageway and Junction 28 of the M1 motorway.
Including studded walls partitioned into 3 offices. With one double sales window and one single display window, fluorescent light, access to
With recessed lobby, sales display window, three steps from the main shop lead up to
Wfheelchair friendly WC off. With solid floor, door to outside.
9.75 square metres (105 square feet).With stainless steel single drainer sink unit with mixer taps, base unit below and W/C.
With kitchen, WC and cloak room off...
First floor entrance way for the access
Classic tile feature fire place
Double glazed roof light
Yard with parking space providing goods delivery area, shared vehicular access leads from the A61 Chesterfield Road and provides access to the
Former coach house with concrete floors
These sales details are awaiting vendor approval.
Freehold. Vacant possession upon completion.
Auction Details
The sale of this property will take place on the stated date by way of Auction Event and is being sold as Unconditional with Fixed Fee (England and Wales).
Binding contracts of sale will be exchanged at the point of sale.
All sales are subject to SDL Property Auctions’ Buyers Terms.
Auction Deposit and Fees
The following deposits and non- refundable auctioneer’s fee apply:
• 10% deposit (subject to a minimum of £5,000)
• Buyer’s Fee of £1074 inc. VAT
The Buyer’s Fee does not contribute to the purchase price and will be considered as part of the chargeable consideration for the property in the calculation of stamp duty liability.
There may be additional fees listed in the Special Conditions of Sale, which will be available to view within the Legal Pack. You must read the Legal Pack carefully before bidding.
Additional Information
For full details about all auction methods and sale types please refer to the Auction Conduct Guide which can be viewed on the SDL Property Auctions’ home page.
This guide includes details on the auction registration process, your payment obligations and how to view the Legal Pack.
Guide Price & Reserve Price
Each property sold is subject to a Reserve Price. The Reserve Price will be within + or – 10% of the Guide Price. The Guide Price is issued solely as a guide so that a buyer can consider whether or not to pursue their interest. A full definition can be found within the Buyers Terms.


























