Land
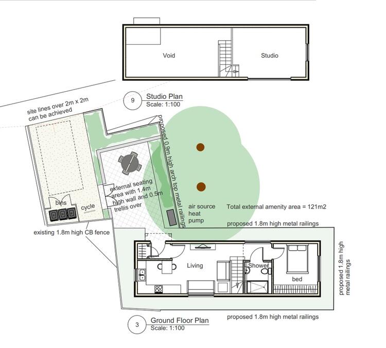
A freehold site containing a former Old Telephone exchange building with planning consent for the creation of a one bedroomed residential dwelling. The site is located in Benson along the Church Road within an area of up-market residential dwellings. The site houses the Former Telephone Exchange building.
There is a huge demand for Air BandB accommodation, second homes and holiday lets along with a shortage of general housing stock within the area. The village of Benson lies 12 miles south of Oxford and 14 miles north of Reading.
The planning is for a one bedroomed dwelling however the new owner may wish to revisit this and apply for a two bedroomed dwelling (subject to obtaining full planning). Prospective buyers must make all necessary independent enquiries in this respect for their specific, intended use prior to placing their bid, as this will be binding.
We advise interested parties to inspect the legal pack before bidding. Planning documents are available at the South Oxfordshire District Council planning portal: Ref P20/S2712/FUL.
The land is subject to a Community Infrastructure Levy fee should the buyer proceed with the development in accordance with the planning documents included in the legal pack. Buyers are referred to special condition 5e for the additional amount payable. Prospective buyers are advised to make all necessary independent enquiries prior to placing their bid as this will be binding.
Services are believed to be available within the vicinity of the site; however interested parties should independently satisfy themselves as to the availability and suitability of any services for their specific requirement.
The land is subject to a Community Infrastructure Levy should the buyer
proceed with the development in accordance with the planning documents
included in the legal pack. The sellers have advised the fee is approximately
£5000-£7500 upon commencement of the development.
Freehold. Vacant possession upon completion.
Auction Details
The sale of this property will take place on the stated date by way of Timed Auction and is being sold as Unconditional with Variable Fee (England and Wales).
Binding contracts of sale will be exchanged at the point of sale.
All sales are subject to SDL Property Auctions’ Buyers Terms.
Auction Deposit and Fees
The following deposits and non- refundable auctioneer’s fees apply:
• 5% deposit (subject to a minimum of £5,000)
• Buyer’s Fee of 4.8% of the purchase price for properties sold for up to £250,000, or 3.6% of the purchase price for properties sold for over £250,000 (in all cases, subject to a minimum of £6,000 inc. VAT). For worked examples please refer to the Auction Conduct Guide.
The Buyer’s Fee does not contribute to the purchase price and will be considered as part of the chargeable consideration for the property in the calculation of stamp duty liability.
There may be additional fees listed in the Special Conditions of Sale, which will be available to view within the Legal Pack. You must read the Legal Pack carefully before bidding.
Additional Information
For full details about all auction methods and sale types please refer to the Auction Conduct Guide which can be viewed on the SDL Property Auctions’ home page.
This guide includes details on the auction registration process, your payment obligations and how to view the Legal Pack.
Guide Price & Reserve Price
Each property sold is subject to a Reserve Price. The Reserve Price will be within + or – 10% of the Guide Price. The Guide Price is issued solely as a guide so that a buyer can consider whether or not to pursue their interest. A full definition can be found within the Buyers Terms.





