property
Draft Details.
Superb development opportunity
Substantial property
Popular residential location
Scope to add value
A superb development opportunity situated close to Stapleford Town Centre and within easy reach of a full range of local amenities. The property was formerly used as office accommodation but, subject to obtaining the necessary planning consents, would provide superb residential living accommodation.
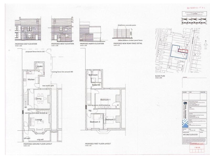
Planning
A planning application has been submitted for a change of use under planning reference number 12/00640 with Broxtowe Borough Council. A copy of the proposed elevation drawings and floor plans are available from the auctioneers upon request.
Accommodation
If built in line with the current planning application, the accommodation would comprise of:
Ground Floor:
Entrance Hall, Lounge, Dining Room, Kitchen, downstairs cloakroom.
First Floor:
Three bedrooms and a family bathroom.
Outside
To the rear of the property there is an enclosed garden.
Tenure
Freehold. Vacant possession on completion.
Conditions Of Sale
The Conditions of Sale will be deposited at the offices of the auctioneers and vendors solicitors/licensed conveyancers seven days prior to sale and the purchaser shall be deemed to have knowledge of same whether inspected or not. Any questions relating to them must be raised prior to 11.30 am. Prospective purchasers are advised to check with the auctioneers before the sale that the property is neither sold or withdrawn.
The purchaser will also be deemed to have read and understood the auction conduct notes printed within the sale catalogue.
Note
Prospective purchasers will need to register within the auction room before the sale commences. Two items of identity will be required together with an indication of how a contractual deposit will be paid. We do not take cash or credit card deposits.
The sale of each lot is subject to a buyers contract handling fee of £495 (inc VAT) payable on the fall of the hammer.
For Sale By Auction - Tuesday 11th December 2012
At Nottingham Racecourse, Colwick Park, Nottingham NG2 4BE
Commencing at 11.30 am

