Semi-detached house
A bay fronted semi detached house in a quiet yet convenient location in the popular village of Hatton.
The property is well placed for local amenities and has a wonderful outlook to the rear over a Green area and River Dove.
The property benefits from gas central heating with combi boiler, uPVC double glazing and has been extended to the rear. However, there are signs of cracking and structural movement in places.
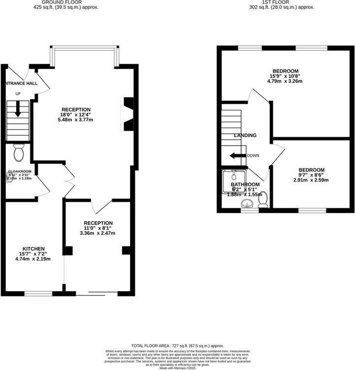
Now arranged as two double bedrooms, but it is believed the property originally offered three bedrooms.
Offered freehold and with vacant possession.
With central heating radiator and staircase rising to first floor.
With bay window to front elevation, radiator, feature fireplace with tiled hearth together with inset cast iron stove and multi panel obscure glazed double doors leading through to -
With base and wall units with work surfaces, sink unit, Upvc double glazed window to rear elevation, radiator, fitted electric double oven, four ring gas hob and fitted extractor.
Having radiator and sliding double glazed patio doors opening out to the rear patio.
Having low level W.C, wall mounted wash basin, gas and electric meters and fitted condensing combi gas fired central heating boiler.
Having access to loft space via retractable ladder and window to side.
Two windows to front elevation and one double central heating radiator. Believed to originally be two bedrooms.
With radiator and window overlooking the rear garden and open ground beyond and subsequently the River Dove.
With suite comprising shower enclosure, pedestal wash basin, low level W.C, heated ladder towel radiator, obscure window to rear elevation and low intensity spotlights to ceiling.
A tarmacadam driveway provides ample parking to the front and there is an adjacent fore garden. To the rear are two areas of garden, the first being a covered area which in turn leads onto a large block paved parcel of ground with numerous sheds. Beyond which lies a further enclosed garden with lawn and borders. At the end of the garden is a further shed and greenhouse.
These sales details are awaiting vendor approval
Freehold. Vacant possession upon completion.
Auction Details
The sale of this property will take place on the stated date by way of Live streamed auction and is being sold under the Unconditional sale type.
Binding contracts will be exchanged at the point of sale.
All sales are subject to our Common Auction Conditions and Bidder Terms. Properties located in Scotland and Northern Ireland will be subject to applicable local laws.
Auction Deposit and Fees
The following deposits and non- refundable auctioneers fees apply:
• 5% deposit (subject to a minimum of £5,000)
• Buyer’s Fee of 4.8% of the purchase price (subject to a minimum of £6,000 inc. VAT)
There may be additional fees listed in the Special Conditions of Sale, which will be available to view within the Legal Pack. You must read the Legal Pack carefully before bidding.
Additional Information
For full details about our auction processes, please refer to the Bidder Terms which can be viewed on our home page.
This explains the types of auction and sale methods we offer, the bidding registration process, your payment obligations, and how to view the Legal Pack (and any applicable home report for residential Scottish properties).
Guide Price & Reserve Price
Each property sold is subject to a Reserve Price. The Reserve Price will be within + or - 10% of the Guide Price. The Guide Price is issued solely as a guide so that a buyer can consider whether or not to pursue their interest. A full definition can be found within the Buyers Terms.












