House of Multiple Occupation
Four double bedroom student HMO property. Ideally located in Dunkirk.
Situated right next to the Queens Medical Centre Hospital and in walking distance to University of Nottingham.
This fully licensed HMO offers great access being just minutes from the University of Nottingham’s Jubilee Campus, close to University Park, and with excellent tram and bus links to Nottingham Trent University and the city centre.
An ideal investment opportunity for anyone looking to enter the student market, or alternatively add to their existing portfolio.
The property is let for 25/26 academic year at the following rents -
Rent for the 25/26 academic year £18,800.00, excluding utilities.
Rented for the 26/27 academic year at £2,045.33 per month including bills.
Four Double Bedrooms, fully furnished and complete with bed, mattress, study desk, chair and wardrobe. Furniture Included.
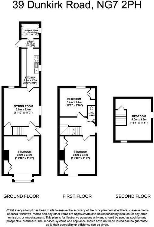
Hallway, Communal Lounge, Communal Kitchen, Utility Room, Bathroom, Bedroom One.
Landing, Bedroom Two, Bedroom Three, Cloakroom/Toilet.
Bedroom Four.
Gardens to front, side and rear.
These sales details are awaiting vendor approval
Please be advised that the auctioneers have not personally inspected the property. Prospective buyers are advised to make a viewing enquiry and any other necessary independent enquiries before placing their bid, as this will be binding.
Freehold. Subject to tenancy.
Auction Details
The sale of this property will take place on the stated date by way of Live streamed auction and is being sold under the Unconditional sale type.
Binding contracts will be exchanged at the point of sale.
All sales are subject to our Common Auction Conditions and Bidder Terms. Properties located in Scotland and Northern Ireland will be subject to applicable local laws.
Auction Deposit and Fees
The following deposits and non- refundable auctioneers fees apply:
• 5% deposit (subject to a minimum of £5,000)
• Buyer’s Fee of 4.8% of the purchase price (subject to a minimum of £6,000 inc. VAT)
There may be additional fees listed in the Special Conditions of Sale, which will be available to view within the Legal Pack. You must read the Legal Pack carefully before bidding.
Additional Information
For full details about our auction processes, please refer to the Bidder Terms which can be viewed on our home page.
This explains the types of auction and sale methods we offer, the bidding registration process, your payment obligations, and how to view the Legal Pack (and any applicable home report for residential Scottish properties).
Guide Price & Reserve Price
Each property sold is subject to a Reserve Price. The Reserve Price will be within + or - 10% of the Guide Price. The Guide Price is issued solely as a guide so that a buyer can consider whether or not to pursue their interest. A full definition can be found within the Buyers Terms.












