Commercial Property
The 1924 building originally formed part of the old Putty Manufacturing Works for Adshed Ratcliffe & Co. Ltd, and was subsequently used as a showroom for a local builders merchant. The building has been extensively refurbished to create an indoor shopping arcade/business centre, providing a number of kiosk-style shops. The building has timber-framed double glazed windows to Campbell Street, two access points with external security shutters, Wi-Fi, CCTV, and air-conditioning. All units have electricity sub-meters.
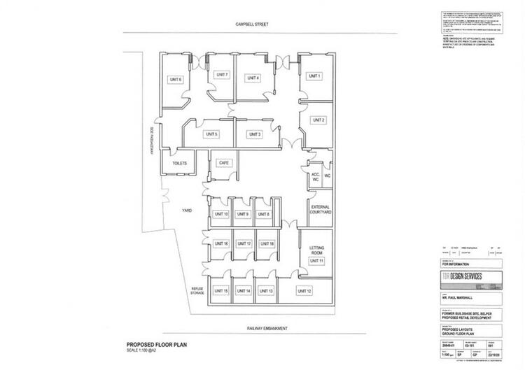
The individual work spaces can be used for a variety of uses including offices, consulting rooms, retail, or clinic. The internal partitions are demountable, and the internal arrangements could be configured to suit occupiers.
The 1924 building is situated on Campbell Street, at its junction with the A609 New Road, providing a link to King Street, which is the prime retailing area for Belper. Belper is a Market Town, and lies approx. 7-miles to the north of the city of Derby. Belper was one of the first Mill Towns, and now forms part of the Derwent Valley Mills World Heritage Site, and benefits from good transportation links, with road, bus and train links to Derby and Matlock.
The individual units range in in size from 112 sq. ft./10.4 sqm. up to 202 sq. ft./22.48 sqm. The GIA of the building is 4,660 sq. ft./432.16 sqm. or thereabouts.
If the property is fully let, based on the existing configuration, it is anticipated that the annual rent is circa. £90,000. The annual costs for supplying all the services, excluding management fees is in the order of £21,000. Therefore, there is potential to obtain gross receipts of circa. £70,00 per annum.
All units are assessed individually for non-domestic rating purposes. Subject to satisfying certain criteria, the individual spaces could benefit from Small Business Rates Relief. Interested parties should make their own enquiries with the local authority, Amber Valley Borough Council.
Freehold. Part let/part vacant.
Auction Details
The sale of this property will take place on the stated date by way of Live streamed auction and is being sold under the Unconditional sale type.
Binding contracts will be exchanged at the point of sale.
All sales are subject to our Common Auction Conditions and Bidder Terms. Properties located in Scotland and Northern Ireland will be subject to applicable local laws.
Auction Deposit and Fees
The following deposits and non- refundable auctioneers fees apply:
• 5% deposit (subject to a minimum of £5,000)
• Buyer’s Fee of 4.8% of the purchase price (subject to a minimum of £6,000 inc. VAT)
There may be additional fees listed in the Special Conditions of Sale, which will be available to view within the Legal Pack. You must read the Legal Pack carefully before bidding.
Additional Information
For full details about our auction processes, please refer to the Bidder Terms which can be viewed on our home page.
This explains the types of auction and sale methods we offer, the bidding registration process, your payment obligations, and how to view the Legal Pack (and any applicable home report for residential Scottish properties).
Guide Price & Reserve Price
Each property sold is subject to a Reserve Price. The Reserve Price will be within + or - 10% of the Guide Price. The Guide Price is issued solely as a guide so that a buyer can consider whether or not to pursue their interest. A full definition can be found within the Buyers Terms.



