Terraced House
Located close to the City Centre and within a short distance of the Royal Derby Hospital, is a two bedroomed mid terraced property, requiring a scheme of improvement and upgrading, situated within a strong letting location and with vacant possession.
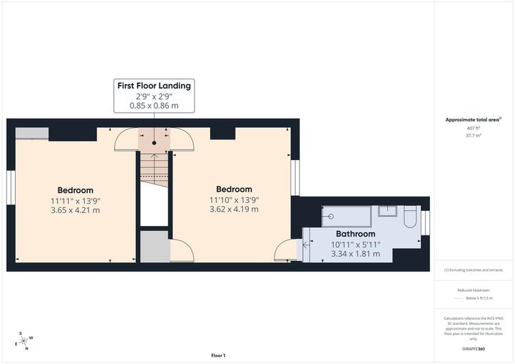
Benefitting from uPVC double glazing and gas central heating, the accommodation in brief comprises: Spacious lounge; separate dining room with access to an under stairs store; fitted kitchen; first floor landing; two generous bedrooms and a fitted bathroom to the rear.
The enclosed rear garden offers a courtyard style patio area, mixed flower and shrubbery beds and several outbuildings.
Bedford Street lies convenient for local amenities including shops and schools together with good access to Derby City Centre, the Royal Derby Hospital, Derby University, Rolls-Royce, Alstom and East Midlands Airport.
3.71m x 3.66m (12ft 2 x 12ft 0)
0.89m x 0.84m (2ft 11 x 2ft 9)
3.71m x 3.63m (12ft 2 x 11ft 11)
3.81m x 1.78m (12ft 6 x 5ft 10)
0.84m x 0.84m (2ft 9 x 2ft 9)
4.19m x 3.63m (13ft 9 x 11ft 11)
4.19m x 3.61m (13ft 9 x 11ft 10)
3.33m x 1.80m (10ft 11 x 5ft 11)
Freehold. Vacant possession upon completion.
Auction Details
The sale of this property will take place on the stated date by way of Live streamed auction and is being sold under the Unconditional sale type.
Binding contracts will be exchanged at the point of sale.
All sales are subject to our Common Auction Conditions and Bidder Terms. Properties located in Scotland and Northern Ireland will be subject to applicable local laws.
Auction Deposit and Fees
The following deposits and non- refundable auctioneers fees apply:
• 5% deposit (subject to a minimum of £5,000)
• Buyer’s Fee of 4.8% of the purchase price (subject to a minimum of £6,000 inc. VAT)
There may be additional fees listed in the Special Conditions of Sale, which will be available to view within the Legal Pack. You must read the Legal Pack carefully before bidding.
Additional Information
For full details about our auction processes, please refer to the Bidder Terms which can be viewed on our home page.
This explains the types of auction and sale methods we offer, the bidding registration process, your payment obligations, and how to view the Legal Pack (and any applicable home report for residential Scottish properties).
Guide Price & Reserve Price
Each property sold is subject to a Reserve Price. The Reserve Price will be within + or - 10% of the Guide Price. The Guide Price is issued solely as a guide so that a buyer can consider whether or not to pursue their interest. A full definition can be found within the Buyers Terms.










