Terraced House
An excellent freehold residential investment opportunity to acquire a large than average, two double bedroomed mid terraced property with vacant possession, enjoying a strong letting location close to the Derby city centre, requiring a scheme of improvement and modernisation.
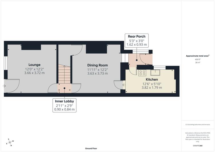
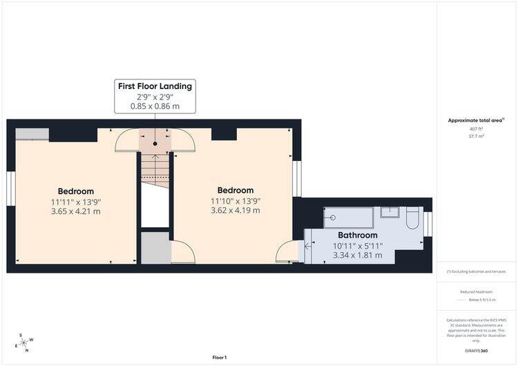
Benefitting from gas central heating, the accommodation in brief comprises: Entrance Hall with period style Minton tile flooring; good sized lounge; separate dining room; kitchen to the rear with access to the garden space and the useful cellar store; first floor landing; two generous double bedrooms, one of which has been partitioned and a fitted first floor bathroom.
To the rear of the property is an enclosed courtyard style garden space with brick-built outhouse.
Riddings Street is conveniently located for local amenities, including shops and schools, as well as excellent road and public transport access to Derby City Centre and derby Royal Hospital. A viewing is essential to appreciate the potential and position of the accommodation on offer.
3.89m x 3.00m (12ft 9 x 9ft 10)
3.89m x 3.10m (12ft 9 x 10ft 2)
2.67m x 2.36m (8ft 9 x 7ft 9)
3.94m x 3.33m (12ft 11 x 10ft 11)
3.86m x 3.17m (12ft 8 x 10ft 5)
3.86m x 1.88m (12ft 8 x 6ft 2)
2.67m x 2.36m (8ft 9 x 7ft 9)
Freehold. Vacant possession upon completion.
Auction Details
The sale of this property will take place on the stated date by way of Live streamed auction and is being sold under the Unconditional sale type.
Binding contracts will be exchanged at the point of sale.
All sales are subject to our Common Auction Conditions and Bidder Terms. Properties located in Scotland and Northern Ireland will be subject to applicable local laws.
Auction Deposit and Fees
The following deposits and non- refundable auctioneers fees apply:
• 5% deposit (subject to a minimum of £5,000)
• Buyer’s Fee of 4.8% of the purchase price (subject to a minimum of £6,000 inc. VAT)
There may be additional fees listed in the Special Conditions of Sale, which will be available to view within the Legal Pack. You must read the Legal Pack carefully before bidding.
Additional Information
For full details about our auction processes, please refer to the Bidder Terms which can be viewed on our home page.
This explains the types of auction and sale methods we offer, the bidding registration process, your payment obligations, and how to view the Legal Pack (and any applicable home report for residential Scottish properties).
Guide Price & Reserve Price
Each property sold is subject to a Reserve Price. The Reserve Price will be within + or - 10% of the Guide Price. The Guide Price is issued solely as a guide so that a buyer can consider whether or not to pursue their interest. A full definition can be found within the Buyers Terms.







