Terraced House
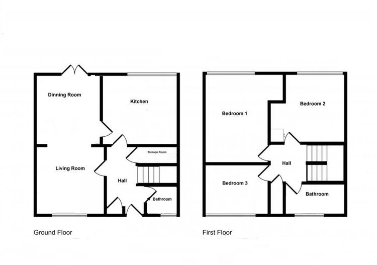
A vacant three bedroom, two bathroom terrace property requiring a scheme of general modernisation and refurbishment throughout, having gas central heating and double glazing and being well located within easy reach of Sheffield city centre with convenient access to the tram network with the nearest stop being a short walk at Park Grange Road. The accommodation comprises an entrance hall, downstairs shower room, Kitchen and open plan lounge / dining room. On the first floor are three good size bedrooms and the main bathroom. Outside there are gardens to both the front and rear.
1.32m x 1.36m
1.70m x 0.83m
4.95m x 3.26m
3.23m x 6.44m
2.96m x 4.19m
3.51m x 3.24m
2.96m x 1.4m
Font and rear gardens
These sales details are awaiting vendor approval.
Freehold. Vacant possession upon completion.
Auction Details
The sale of this property will take place on the stated date by way of Auction Event and is being sold under and Unconditional sale type.
Binding contracts of sale will be exchanged at the point of sale.
All sales are subject to SDL Property Auctions Buyers Terms. Properties located in Scotland will be subject to applicable Scottish law.
Auction Deposit and Fees
The following deposits and non- refundable auctioneers fee apply:
• 10% deposit (subject to a minimum of £5,000)
• Buyers Fee of 1.2% of the purchase price (subject to a minimum of £1,860 inc. VAT)
The Buyers Fee does not contribute to the purchase price, however it will be taken into account when calculating the Stamp Duty Land Tax for the property (known as Land and Buildings Transaction Tax for properties located in Scotland), because it forms part of the chargeable consideration for the property.
There may be additional fees listed in the Special Conditions of Sale, which will be available to view within the Legal Pack. You must read the Legal Pack carefully before bidding.
Additional Information
For full details about all auction methods and sale types please refer to the Auction Conduct Guide which can be viewed on the SDL Property Auctions home page.
This guide includes details on the auction registration process, your payment obligations and how to view the Legal Pack (and any applicable Home Report for residential Scottish properties).
Guide Price & Reserve Price
Each property sold is subject to a Reserve Price. The Reserve Price will be within + or - 10% of the Guide Price. The Guide Price is issued solely as a guide so that a buyer can consider whether or not to pursue their interest. A full definition can be found within the Buyers Terms.














