End of terrace house
A superbly spacious two bedroomed end-terraced property located in Allenton, requiring refurbishment throughout but being ideally located for access into the city centre, Pride Park, Rolls-Royce and Derby Railway Station - making it a fantastic opportunity for a future Buy-To-Let investment.
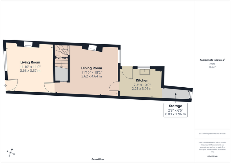
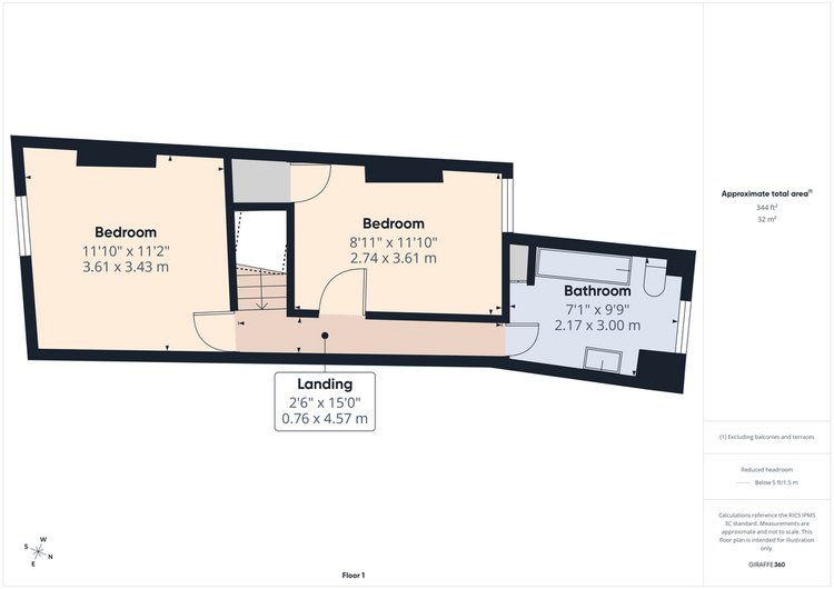
In brief, the accommodation comprises of entrance into the living room at the front, separate dining room and the kitchen to the rear. Found to the first floor are two very generous double bedrooms, a galleried first floor landing and a superbly spacious bathroom. In our opinion there is potential for a loft conversion, subject to obtaining the necessary planning consents.
Outside there is a good sized rear garden with a substantial storage shed, rear access and to the front on-street parking.
With excellent access to local amenities being within walking distance of local shops, ideal for Rolls-Royce and road links including the A50, A6 and M1, an early viewing is highly recommended to avoid disappointment.
3.61 m x 3.35 m (11ft 10 x 11ft)
3.61 m x 4.62 m (11ft 10 x 15ft 2)
2.21 m x 3.05 m (7ft 3 x 10ft)
3.61 m x 3.40 m (11ft 10 x 11ft 2)
2.72 m x 3.61 m (8ft 11 x 11ft 10)
2.16 m x 2.97 m (7ft 1 x 9ft 9)
Please be advised that whilst our joint agent has conducted an inspection, the auctioneers have not personally inspected the property. Prospective buyers are advised to make a viewing enquiry and any other necessary independent enquiries before placing their bid, as this will be binding.
Freehold. Vacant possession upon completion.
Auction Details
The sale of this property will take place on the stated date by way of Auction Event and is being sold under an Unconditional sale type.
Binding contracts of sale will be exchanged at the point of sale.
All sales are subject to SDL Property Auctions Buyers Terms. Properties located in Scotland will be subject to applicable Scottish law.
Auction Deposit and Fees
The following deposits and non- refundable auctioneers fees apply:
• 5% deposit (subject to a minimum of £5,000)
• Buyers Fee of 4.8% of the purchase price (subject to a minimum of £6,000 inc. VAT).
The Buyers Fee does not contribute to the purchase price, however it will be taken into account when calculating the Stamp Duty Land Tax for the property (known as Land and Buildings Transaction Tax for properties located in Scotland), because it forms part of the chargeable consideration for the property.
There may be additional fees listed in the Special Conditions of Sale, which will be available to view within the Legal Pack. You must read the Legal Pack carefully before bidding.
Additional Information
For full details about all auction methods and sale types please refer to the Auction Conduct Guide which can be viewed on the SDL Property Auctions home page.
This guide includes details on the auction registration process, your payment obligations and how to view the Legal Pack (and any applicable Home Report for residential Scottish properties).
Guide Price & Reserve Price
Each property sold is subject to a Reserve Price. The Reserve Price will be within + or - 10% of the Guide Price. The Guide Price is issued solely as a guide so that a buyer can consider whether or not to pursue their interest. A full definition can be found within the Buyers Terms.











