Terraced House
Located to offer excellent access to the city as well as transport links via the A38/A52 and M1, this larger than average three bedroomed traditional terraced home offers excellent potential to convert to a HMO or add additional lettable rooms via a loft conversion (subject to relevant permissions).
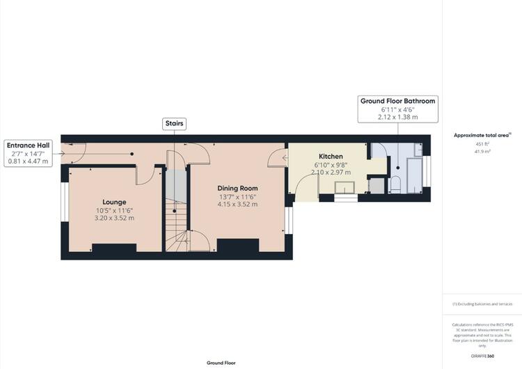
Benefitting from part uPVC double glazing, the accommodation currently offers an entrance hallway with built in store cupboard, two separate utility rooms, fitted kitchen, ground floor bathroom, first floor landing, larger than average double bedroom which extends over the alleyway and which lends itself to being split to provide two well-proportioned rooms, two further generous first floor bedrooms and an enclosed rear garden.
Mansfield Road offers an excellent opportunity for first time buyers and investors alike, combining strong transport links with consistent rental demand. Located just outside the city centre, it provides easy access to Derbys core amenities and the popular Darley Park while connecting directly to the A38, A52 and M1 for fast regional commuting. Frequent bus services further enhance accessibility and nearby business hubs such as Parker Industrial Estate and Meteor Business Park ensure a steady pool of local professionals seeking quality accommodation, making this area a reliable and high-yield investment location.
14ft 7 x 2ft 7 (4.44 m x 0.79 m)
11ft 6 x 10ft 5 (3.51 m x 3.17 m)
13ft 7 x 11ft 6 (4.14 m x 3.51 m)
9ft 8 x 6ft 10 (2.95 m x 2.08 m)
6ft 11 x 4ft 6 (2.11 m x 1.37 m)
14ft 6 x 2ft 6 (4.42 m x 0.76 m)
17ft x 11ft 9 (5.18 m x 3.58 m)
13ft 10 x 11ft 6 (4.22 m x 3.51 m)
9ft 10 x 6ft 10 (3.00 m x 2.08 m)
We have been made aware this property is in the Little Chester conservation area. Prospective buyers are advised to make all necessary independent enquiries prior to bidding, as any bid made will be binding.
These sales details are awaiting vendor approval.
Freehold. Vacant possession upon completion.
On Street
Auction Details
The sale of this property will take place on the stated date by way of Auction Event and is being sold under an Unconditional sale type.
Binding contracts of sale will be exchanged at the point of sale.
All sales are subject to SDL Property Auctions Buyers Terms. Properties located in Scotland will be subject to applicable Scottish law.
Auction Deposit and Fees
The following deposits and non- refundable auctioneers fees apply:
• 5% deposit (subject to a minimum of £5,000)
• Buyers Fee of 4.8% of the purchase price (subject to a minimum of £6,000 inc. VAT).
The Buyers Fee does not contribute to the purchase price, however it will be taken into account when calculating the Stamp Duty Land Tax for the property (known as Land and Buildings Transaction Tax for properties located in Scotland), because it forms part of the chargeable consideration for the property.
There may be additional fees listed in the Special Conditions of Sale, which will be available to view within the Legal Pack. You must read the Legal Pack carefully before bidding.
Additional Information
For full details about all auction methods and sale types please refer to the Auction Conduct Guide which can be viewed on the SDL Property Auctions home page.
This guide includes details on the auction registration process, your payment obligations and how to view the Legal Pack (and any applicable Home Report for residential Scottish properties).
Guide Price & Reserve Price
Each property sold is subject to a Reserve Price. The Reserve Price will be within + or - 10% of the Guide Price. The Guide Price is issued solely as a guide so that a buyer can consider whether or not to pursue their interest. A full definition can be found within the Buyers Terms.













