Semi-detached house
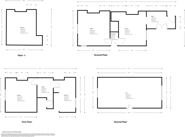
This semi-detached property features three bedrooms, including a converted master suite on the second floor with two Velux windows. It also boasts a converted cellar, a separate utility room, and retains many original features, providing ample space and storage throughout. The low-maintenance enclosed rear courtyard adds to its appeal.
This property presents a strong investment opportunity, with a rental estimate of £1,000, which could rise to £1,200 following a modernisation scheme.
In summary, the property includes an entrance leading to a dual-aspect lounge with an electric feature fireplace, a modern fitted kitchen that provides access to the converted cellar, a separate utility room, and a spacious family bathroom equipped with a white three-piece suite and a freestanding shower. The first floor accommodates a double bedroom and a single bedroom, along with an office nook that leads to the converted master bedroom on the second floor.
Conveniently situated for easy access to the Nottingham tram line, which connects to Nottingham City Centre, as well as the M1 motorway.
Construction - Solid brick
Heating - Electric storage heaters
Flood risk - No risk
Mobile coverage - O2, EE, Three and Vodafone
Satellite and Cable TV - BT and Sky
Broadband - Standard, Superfast and Ultrafast
Freehold. Vacant possession upon completion.
- Heating Supply: Electric
- Electric Supply: Mains Supply
- Water Supply: Mains Supply
- Sewerage Arrangements: Mains Supply
On Street
Auction Details
The sale of this property will take place on the stated date by way of Auction Event and is being sold under and Unconditional sale type.
Binding contracts of sale will be exchanged at the point of sale.
All sales are subject to SDL Property Auctions Buyers Terms. Properties located in Scotland will be subject to applicable Scottish law.
Auction Deposit and Fees
The following deposits and non- refundable auctioneers fee apply:
• 10% deposit (subject to a minimum of £5,000)
• Buyers Fee of 1.2% of the purchase price (subject to a minimum of £1,500 inc. VAT)
The Buyers Fee does not contribute to the purchase price, however it will be taken into account when calculating the Stamp Duty Land Tax for the property (known as Land and Buildings Transaction Tax for properties located in Scotland), because it forms part of the chargeable consideration for the property.
There may be additional fees listed in the Special Conditions of Sale, which will be available to view within the Legal Pack. You must read the Legal Pack carefully before bidding.
Additional Information
For full details about all auction methods and sale types please refer to the Auction Conduct Guide which can be viewed on the SDL Property Auctions home page.
This guide includes details on the auction registration process, your payment obligations and how to view the Legal Pack (and any applicable Home Report for residential Scottish properties).
Guide Price & Reserve Price
Each property sold is subject to a Reserve Price. The Reserve Price will be within + or - 10% of the Guide Price. The Guide Price is issued solely as a guide so that a buyer can consider whether or not to pursue their interest. A full definition can be found within the Buyers Terms.






















