Detached house
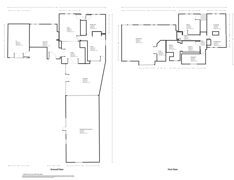
This beautifully presented four-bedroom residence is situated on an expansive plot with gated access to a spacious driveway in the highly desirable area of Long Eaton, Derbyshire. The property features an indoor pool, bar, hot tub, sauna, and a hidden cinema room.
Character is evident throughout the home, showcasing original features, exposed brickwork, and a log burner.
In summary, the layout includes an entrance hallway, a large lounge, an open-plan dining area leading to the kitchen, a cinema room, a bar room, a conservatory, an indoor pool, and a sauna. On the first floor, you will find a master bedroom with an ensuite, two additional double bedrooms, one with a dressing room, a family bathroom, and a single bedroom.
Externally, the property offers a gated driveway accommodating multiple vehicles, while the rear features a spacious garden with a patio area.
Long Eaton is a vibrant market town located in southern Derbyshire, adjacent to Nottinghamshire and in close proximity to both Derby and Nottingham. This lively town combines historical charm with modern amenities and excellent transport links, making it an attractive choice for families, professionals, and commuters. It is conveniently located near the M1 motorway, providing easy access to major cities such as Nottingham (8 miles), Derby (10 miles), and Leicester (30 miles). Additionally, the nearby Long Eaton Railway Station offers regular train services to key destinations, including London, Birmingham, and Sheffield, making it ideal for those commuting.
Construction Material: Standard brick. Heating: Boiler, mains gas. Coverage: Broadband - Standard, Ultrafast and Superfast is available in this location. Mobile signal - O2, Vodafone, EE and Three show as available. Satellite and Cable - BT and Sky show as available in this area.
Freehold. Vacant possession upon completion.
- Heating Supply: Double Glazing, Gas Central
- Electric Supply: Mains Supply
- Water Supply: Mains Supply
- Sewerage Arrangements: Mains Supply
Driveway
Auction Details
The sale of this property will take place on the stated date by way of Auction Event and is being sold under and Unconditional sale type.
Binding contracts of sale will be exchanged at the point of sale.
All sales are subject to SDL Property Auctions Buyers Terms. Properties located in Scotland will be subject to applicable Scottish law.
Auction Deposit and Fees
The following deposits and non- refundable auctioneers fee apply:
• 10% deposit (subject to a minimum of £5,000)
• Buyers Fee of 1.2% of the purchase price (subject to a minimum of £1,500 inc. VAT)
The Buyers Fee does not contribute to the purchase price, however it will be taken into account when calculating the Stamp Duty Land Tax for the property (known as Land and Buildings Transaction Tax for properties located in Scotland), because it forms part of the chargeable consideration for the property.
There may be additional fees listed in the Special Conditions of Sale, which will be available to view within the Legal Pack. You must read the Legal Pack carefully before bidding.
Additional Information
For full details about all auction methods and sale types please refer to the Auction Conduct Guide which can be viewed on the SDL Property Auctions home page.
This guide includes details on the auction registration process, your payment obligations and how to view the Legal Pack (and any applicable Home Report for residential Scottish properties).
Guide Price & Reserve Price
Each property sold is subject to a Reserve Price. The Reserve Price will be within + or - 10% of the Guide Price. The Guide Price is issued solely as a guide so that a buyer can consider whether or not to pursue their interest. A full definition can be found within the Buyers Terms.































