Land
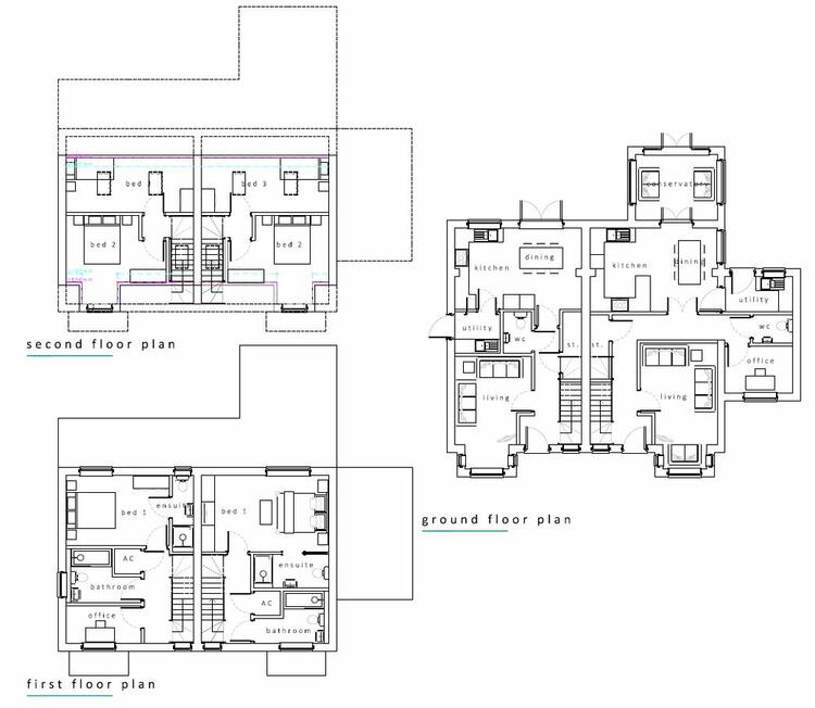
A freehold parcel of land with planning permission for 4 x three-bedroom houses and 1 x one-bedroom bungalow. The original public house building is located on St Peters Road and has a side entrance, which provides access to the development land at the rear.
Full plans together with the decision notice can be viewed/downloaded online by visiting the Dudley Metropolitan Borough Council Planning Portal Ref P23/0045.
The site is located on St Peters Road close to its junction with Baptist End Road within a residential estate approximately 1.5 miles from Dudley. Dudley Port Railway station is within 3 miles and the area is well served by bus services. Dudley is connected to Birmingham City Centre by bus and by tram (due to be completed 2024) with proposals for the Tram to also be connected as far as the Merry Hill Centre.
Accommodation:
The site extends circa 25,265 Sq Ft (2,347 Sq M)
Services:
Services are believed to be available within the vicinity of the site; however, interested parties should independently satisfy themselves as to the availability and suitability of any services for their Specific requirement.
Rights of Way, Wayleaves, Easements, Restrictive Covenants ETC:
The site is sold subject to or with the benefit of any Rights of Way, Wayleaves, Easements, Restrictive Covenants, which may exist whether mentioned in these particulars or not. For further information in relation to these matters please refer to the legal pack.
Value Added Tax:
We are advised that VAT will not be chargeable on this transaction.
Viewings:
The site is open for viewings.
May be suitable for alternative uses, subject to obtaining the necessary consents. Prospective buyers must make all necessary independent enquiries in this respect for their specific, intended use prior to placing their bid, as this will be binding.
These sales details are awaiting vendor approval.
Freehold. Vacant possession upon completion.
Auction Details
The sale of this property will take place on the stated date by way of Auction Event and is being sold as Unconditional with Variable Fee (England and Wales).
Binding contracts of sale will be exchanged at the point of sale.
All sales are subject to SDL Property Auctions Buyers Terms. Properties located in Scotland will be subject to applicable Scottish law.
Auction Deposit and Fees
The following deposits and non- refundable auctioneers fees apply:
• 5% deposit (subject to a minimum of £5,000)
• Buyers Fee of 4.8% of the purchase price for properties sold for up to £250,000, or 3.6% of the purchase price for properties sold for over £250,000 (in all cases, subject to a minimum of £6,000 inc. VAT). For worked examples please refer to the Auction Conduct Guide.
The Buyers Fee does not contribute to the purchase price, however it will be taken into account when calculating the Stamp Duty Land Tax for the property (known as Land and Buildings Transaction Tax for properties located in Scotland), because it forms part of the chargeable consideration for the property.
There may be additional fees listed in the Special Conditions of Sale, which will be available to view within the Legal Pack. You must read the Legal Pack carefully before bidding.
Additional Information
For full details about all auction methods and sale types please refer to the Auction Conduct Guide which can be viewed on the SDL Property Auctions home page.
This guide includes details on the auction registration process, your payment obligations and how to view the Legal Pack (and any applicable Home Report for residential Scottish properties).
Guide Price & Reserve Price
Each property sold is subject to a Reserve Price. The Reserve Price will be within + or - 10% of the Guide Price. The Guide Price is issued solely as a guide so that a buyer can consider whether or not to pursue their interest. A full definition can be found within the Buyers Terms.





