Land
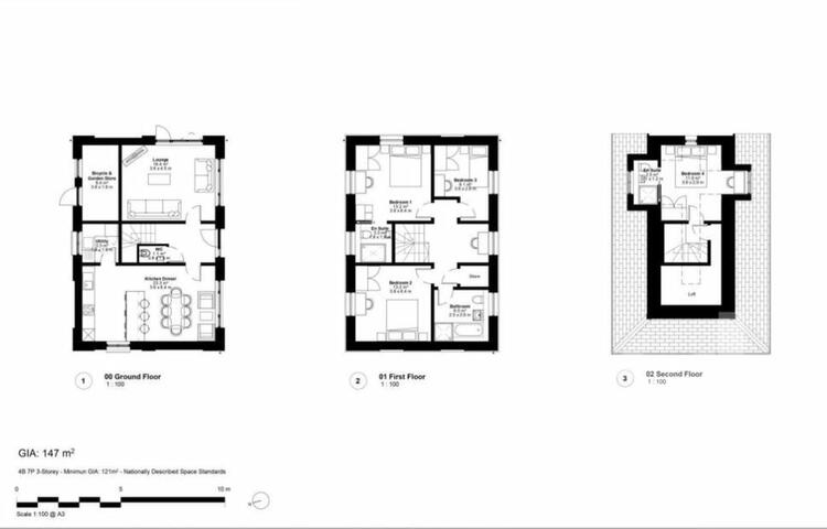
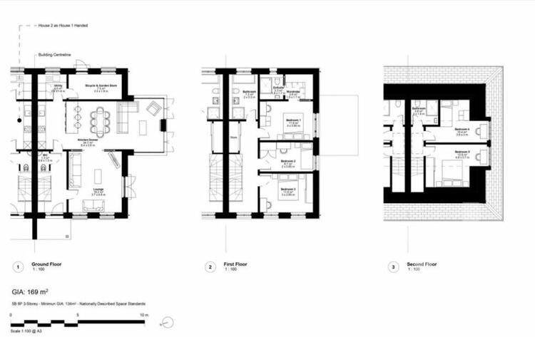
A Freehold building plot with planning permission Application No: 21/5509M Cheshire East Council Planning Dept for a 4 BEDROOM DETACHED HOUSE and a pair of 5 BEDROOM SEMI DETACHED HOMES within an approximately 0.36 acre plot on London Road North (between Vicarage Lane and Glastonbury Drive) backing onto a strip of woodland with picturesque Poynton Pool Beyond.
The Crescent, is the former site of The Crescent Hotel, built sometime in the 1800`s we understand which backs onto Poynton Park and the Pool beyond at the rear. At the far-right end of the front wall onto London Road North there is a small arched recess, this was a water fountain back in the day, as a marker this still exists in the wall today. With the coming of the Second World War though we understand that the hotel was demolished sometime in the 1940`s, according to a local historian. The site has had a varied existence since then spending time as a local Coal Yard and most recently the local Council Depot.
Interested parties are advised to inspect the legal pack for more information and the Planning portal Application No: 21/5509M
Prospective buyers are advised to make all necessary independent enquiries prior to placing their bid as this will be binding.
Freehold. Vacant possession upon completion.
Auction Details
The sale of this property will take place on the stated date by way of Auction Event and is being sold as Unconditional with Fixed Fee.
Binding contracts of sale will be exchanged at the point of sale.
All sales are subject to SDL Property Auctions Buyers Terms. Properties located in Scotland will be subject to applicable Scottish law.
Auction Deposit and Fees
The following deposits and non- refundable auctioneers fee apply:
• 10% deposit (subject to a minimum of £5,000)
• Buyers Fee of £1,500 inc. VAT
The Buyers Fee does not contribute to the purchase price, however it will be taken into account when calculating the Stamp Duty Land Tax for the property (known as Land and Buildings Transaction Tax for properties located in Scotland), because it forms part of the chargeable consideration for the property.
There may be additional fees listed in the Special Conditions of Sale, which will be available to view within the Legal Pack. You must read the Legal Pack carefully before bidding.
Additional Information
For full details about all auction methods and sale types please refer to the Auction Conduct Guide which can be viewed on the SDL Property Auctions home page.
This guide includes details on the auction registration process, your payment obligations and how to view the Legal Pack (and any applicable Home Report for residential Scottish properties).
Guide Price & Reserve Price
Each property sold is subject to a Reserve Price. The Reserve Price will be within + or - 10% of the Guide Price. The Guide Price is issued solely as a guide so that a buyer can consider whether or not to pursue their interest. A full definition can be found within the Buyers Terms.








