Manor House
The West Wing of a Grade II listed Victorian mansion house.
A stunning Gothic style mansion house comprising of six bedrooms and forming the West Wing of Sutton Fields House. Situated in a prime location on the edge of Sutton Bonington.
The property offers substantial accommodation over three floors with amazing architectural features along with large cellar space.
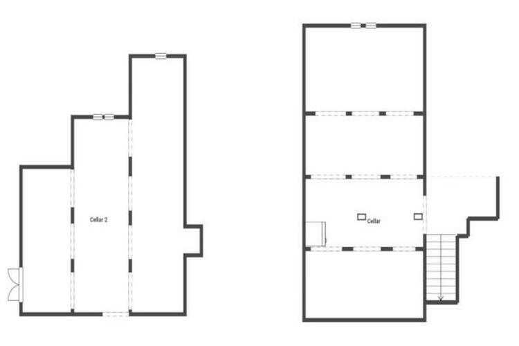
Lower Ground Floor - Cellar.
Ground Floor - Three Reception Rooms, WC, WC Downstairs, Utility Room, Kitchen.
First Floor - Snooker Room, Four Bedrooms (One with En Suite), Bathroom /WC.
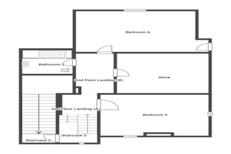
Second Floor - Two Bedrooms, Store Room, Bathroom /WC.
We are informed by the seller that the house comes with planning consent and use as a 3 bedroom bed and breakfast and permission to hold small functions. Prospective buyers must make all necessary independent enquiries in this respect for their specific, intended use prior to placing their bid, as this will be binding.
Numerous amenities are located in the village and the location is within close proximity to University of Nottingham Sutton Bonington Campus, East Midlands airport and the Motorway network.
Viewing is highly recommended.
Large cellar space offering plentiful storage
Mature gardens and ample parking.
These sales details are awaiting vendor approval.
Freehold. Vacant possession upon completion.
Auction Details
The sale of this property will take place on the stated date by way of Auction Event and is being sold as Unconditional with Fixed Fee.
Binding contracts of sale will be exchanged at the point of sale.
All sales are subject to SDL Property Auctions Buyers Terms. Properties located in Scotland will be subject to applicable Scottish law.
Auction Deposit and Fees
The following deposits and non- refundable auctioneers fee apply:
• 10% deposit (subject to a minimum of £5,000)
• Buyers Fee of £1,500 inc. VAT
The Buyers Fee does not contribute to the purchase price, however it will be taken into account when calculating the Stamp Duty Land Tax for the property (known as Land and Buildings Transaction Tax for properties located in Scotland), because it forms part of the chargeable consideration for the property.
There may be additional fees listed in the Special Conditions of Sale, which will be available to view within the Legal Pack. You must read the Legal Pack carefully before bidding.
Additional Information
For full details about all auction methods and sale types please refer to the Auction Conduct Guide which can be viewed on the SDL Property Auctions home page.
This guide includes details on the auction registration process, your payment obligations and how to view the Legal Pack (and any applicable Home Report for residential Scottish properties).
Guide Price & Reserve Price
Each property sold is subject to a Reserve Price. The Reserve Price will be within + or - 10% of the Guide Price. The Guide Price is issued solely as a guide so that a buyer can consider whether or not to pursue their interest. A full definition can be found within the Buyers Terms.














