Block of Apartments
An incredible investment opportunity to buy 6 apartments in SW19 currently generating £200k in yearly rental income.
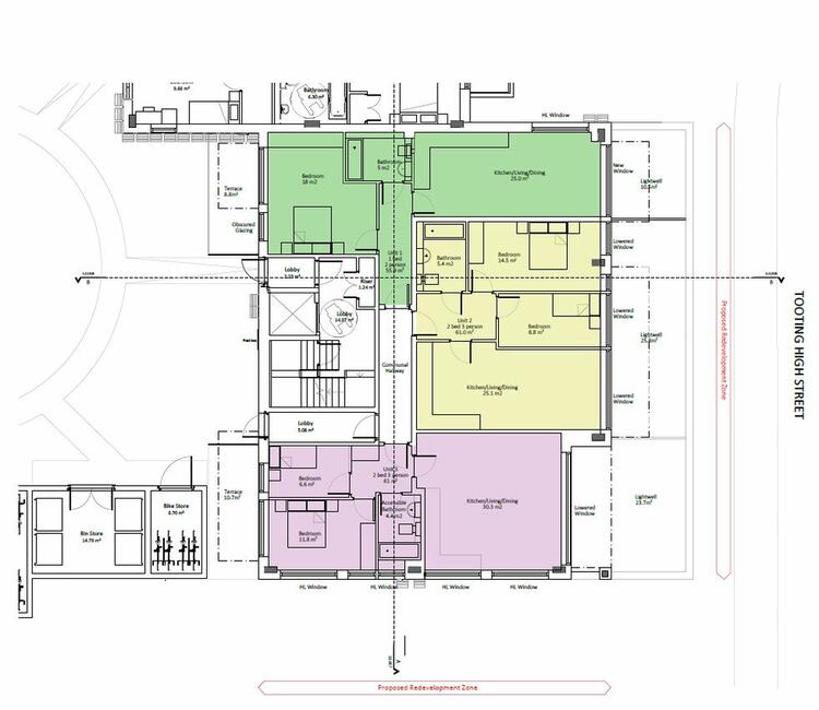
What a fantastic block of apartments, having recently been completed to the most amazing of standards. No expense has been spared in developing these 6 luxury apartments, with the most meticulous attention to detail.
The apartments are currently let with an option to extend the rental period by an additional 5 years, making this an extremely attractive investment rarely available to buy. Full specifications are available and need to be seen to be appreciated.
Boasting in excess of 3,800 sq ft and an enviable location within SW19, close to a wide range of local amenities and transport links.
Registering to bid and making a pre auction offer are both available options for 2-6 High St, please contact SDL Auctions for further details.
Double Glazed Acoustic Glazed Windows and Patio Doors. Timber Strip Flooring to Hallway, Lounge and Kitchen (Light grey oak lament). Underfloor Heating throughout. Wooden strip flooring throughout the bedrooms. Timber Internal Doors (Painted Grey). Modern skirting and architrave, 100mm white MDF skirting with 50mm square edge white MDF architrave.
Single electric oven, electric hob, cooker hood and fridge-freezer. Fitted stone worktops.
Contemporary White Sanitary Ware. Wall Mounted Shower Controls to Baths. Part Tiled Bathrooms (grey light and dark grey tiles). Taps and Mixers Brushed Steel. Polished Chrome Towel Rail. Wall Mounted Vanity Unit. Glass Shower Screen to Bath.
Video Phone Entry System. Low Voltage LED Ceiling Spots. Wall Sockets. Wired for BT Fast Broadband. Sky+ enabled satellite system.
Ultra efficient Air Soured Heat Pump central heating. Mechanical Ventilated Heat Recovery system for fresh air changes. No Parking. Private balconies to all flats with lower ground floor own private terrace. Build Zone 10 Year Warranty. Locked cycle store.
Prospective buyers are advised to make all necessary independent enquiries prior to placing their bid as this will be binding.
Any ground rent and service charge review periods will be confirmed in the lease documents within the legal pack.
These sales details are awaiting vendor approval.
Leasehold. Subject to tenancy.
995
Auction Details
The sale of this property will take place on the stated date by way of Auction Event and is being sold as Unconditional with Variable Fee (England and Wales).
Binding contracts of sale will be exchanged at the point of sale.
All sales are subject to SDL Property Auctions Buyers Terms. Properties located in Scotland will be subject to applicable Scottish law.
Auction Deposit and Fees
The following deposits and non- refundable auctioneers fees apply:
• 5% deposit (subject to a minimum of £5,000)
• Buyers Fee of 4.8% of the purchase price for properties sold for up to £250,000, or 3.6% of the purchase price for properties sold for over £250,000 (in all cases, subject to a minimum of £6,000 inc. VAT). For worked examples please refer to the Auction Conduct Guide.
The Buyers Fee does not contribute to the purchase price, however it will be taken into account when calculating the Stamp Duty Land Tax for the property (known as Land and Buildings Transaction Tax for properties located in Scotland), because it forms part of the chargeable consideration for the property.
There may be additional fees listed in the Special Conditions of Sale, which will be available to view within the Legal Pack. You must read the Legal Pack carefully before bidding.
Additional Information
For full details about all auction methods and sale types please refer to the Auction Conduct Guide which can be viewed on the SDL Property Auctions home page.
This guide includes details on the auction registration process, your payment obligations and how to view the Legal Pack (and any applicable Home Report for residential Scottish properties).
Guide Price & Reserve Price
Each property sold is subject to a Reserve Price. The Reserve Price will be within + or - 10% of the Guide Price. The Guide Price is issued solely as a guide so that a buyer can consider whether or not to pursue their interest. A full definition can be found within the Buyers Terms.








