Residential Development
An extensive former Care home located along Berrington Road, in the exclusive Tenbury Wells offered with vacant possession upon completion.
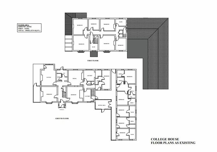
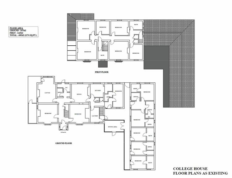
The property comprises a substantial two storey period property with a modern single storey bungalow to the side (currently configured as 5 care rooms with en-suite facilities).
The main building itself is set back from the roadside with well-kept fore garden leading to an impressive entrance. Internally the property is configured into rooms having previously been used as a care facility. Several rooms have wash basins or en-suite.
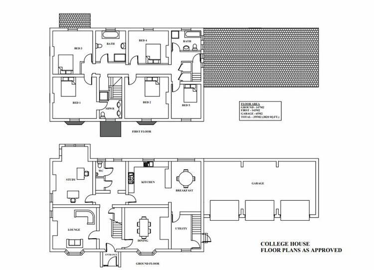
We advise interested parties to inspect the floor plan for layout information.
The heating system appears to be a relatively modern combi boiler (not tested)
Change of use has been granted from Care Home (closed and redundant) to single dwelling, with part demolition of the attached bungalow and part converted to garaging for the dwelling. Prospective buyers are advised to make all necessary independent enquiries prior to placing their bid as this will be binding on the local planning portal.
Having inspected the premises we feel that there are several alternate options for the building such as creating two separate residential dwellings, retaining as a care facility or converting the connected bungalow into a residential dwelling in its own right and keeping the main building for care use. All Subject to any planning consent required.
Interested parties are advised to inspect the legal pack for more information.
These sales details are awaiting vendor approval.
Freehold. Vacant possession upon completion.
Auction Details
The sale of this property will take place on the stated date by way of Auction Event and is being sold as Unconditional with Variable Fee (England and Wales).
Binding contracts of sale will be exchanged at the point of sale.
All sales are subject to SDL Property Auctions Buyers Terms. Properties located in Scotland will be subject to applicable Scottish law.
Auction Deposit and Fees
The following deposits and non- refundable auctioneers fees apply:
• 5% deposit (subject to a minimum of £5,000)
• Buyers Fee of 4.8% of the purchase price for properties sold for up to £250,000, or 3.6% of the purchase price for properties sold for over £250,000 (in all cases, subject to a minimum of £6,000 inc. VAT). For worked examples please refer to the Auction Conduct Guide.
The Buyers Fee does not contribute to the purchase price, however it will be taken into account when calculating the Stamp Duty Land Tax for the property (known as Land and Buildings Transaction Tax for properties located in Scotland), because it forms part of the chargeable consideration for the property.
There may be additional fees listed in the Special Conditions of Sale, which will be available to view within the Legal Pack. You must read the Legal Pack carefully before bidding.
Additional Information
For full details about all auction methods and sale types please refer to the Auction Conduct Guide which can be viewed on the SDL Property Auctions home page.
This guide includes details on the auction registration process, your payment obligations and how to view the Legal Pack (and any applicable Home Report for residential Scottish properties).
Guide Price & Reserve Price
Each property sold is subject to a Reserve Price. The Reserve Price will be within + or - 10% of the Guide Price. The Guide Price is issued solely as a guide so that a buyer can consider whether or not to pursue their interest. A full definition can be found within the Buyers Terms.


























