Shop
Freehold development opportunity.
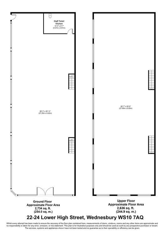
This substantial two storey property is prominently positioned on the corner of Lower High Street and Russell Street in the popular town of Wednesbury. The area offers excellent transport links which include junction 9 of M6 motorway approximately two miles to the north east as well as a popular bus network servicing the immediate area. The property comprises a spacious retail unit to the ground floor including WCs and ancillary areas and open-plan retail space to the first floor. The property measures approximately 5,895 sq ft in total and benefits from planning permission for the conversion of the property to nine one bedroom apartments.
Planning Ref: DC/19/62984 & DC/20/64440.
Please be advised that room measurements are currently not available. Prospective buyers are advised to make all necessary independent enquiries before placing their bid, as this will be binding.
Freehold. Vacant possession upon completion.
Auction Details
The sale of this property will take place on the stated date by way of Auction Event and is being sold as Unconditional with Fixed Fee (England and Wales).
Binding contracts of sale will be exchanged at the point of sale.
All sales are subject to SDL Property Auctions’ Buyers Terms.
Auction Deposit and Fees
The following deposits and non- refundable auctioneer’s fee apply:
• 10% deposit (subject to a minimum of £5,000)
• Buyer’s Fee of £1074 inc. VAT
The Buyer’s Fee does not contribute to the purchase price and will be considered as part of the chargeable consideration for the property in the calculation of stamp duty liability.
There may be additional fees listed in the Special Conditions of Sale, which will be available to view within the Legal Pack. You must read the Legal Pack carefully before bidding.
Additional Information
For full details about all auction methods and sale types please refer to the Auction Conduct Guide which can be viewed on the SDL Property Auctions’ home page.
This guide includes details on the auction registration process, your payment obligations and how to view the Legal Pack.
Guide Price & Reserve Price
Each property sold is subject to a Reserve Price. The Reserve Price will be within + or – 10% of the Guide Price. The Guide Price is issued solely as a guide so that a buyer can consider whether or not to pursue their interest. A full definition can be found within the Buyers Terms.

_t202208011456.png?&uuid=sdl_website)
_t202208011456.png?&uuid=sdl_website)
