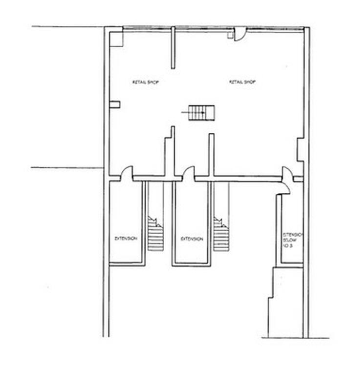
Mixed Use
A freehold investment opportunity of brick elevations and tiled, pitched roof coverings comprising a large commercial unit on the ground floor which is currently empty and four tenanted apartments above providing an immediate income.
Each apartment is let on an AST bringing in a combined £28,980 per annum and the ground floor commercial is currently vacant but available at £17,500 per annum resulting in a potential overall income of £46,480 per annum, based on comparable evidence.
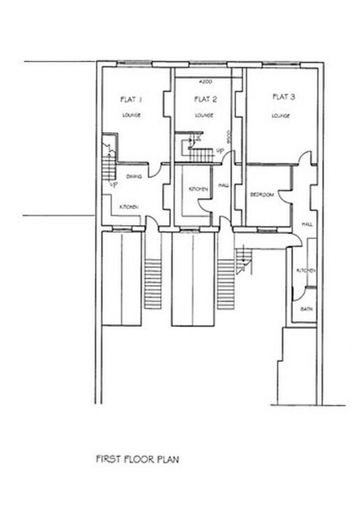
To the rear of the property is space for four vehicles with separate access to the apartments opposite an area of public space. All apartments have gas central heating powered by individual combi boilers and UPVC double glazed windows. Although the ground floor unit is arranged as a single unit, it could very easily be split into two units which may be more appealing to the rental market.
The property occupies a prominent location within the town centre, opposite Farmfoods and within 20 yards of Aldi. Haywood Street is one of the main A roads which circles Leek providing access to Moorlands Shopping Centre, the bus station, and public carparks such as Smithfield Centre South and Smithfield North.
Leek is 11 miles from Stoke on Trent and 15 miles from Ashbourne in the opposite direction.
Over two floors, including lounge, kitchen, 2x bedrooms and <br>bathroom. Let to a private individual at £660 per calendar month who has been in occupation for one year.
Over two floors, including lounge, kitchen, 2x bedrooms and <br>bathroom. Let to a private individual at £660 per calendar month who has been in occupation for over two years.
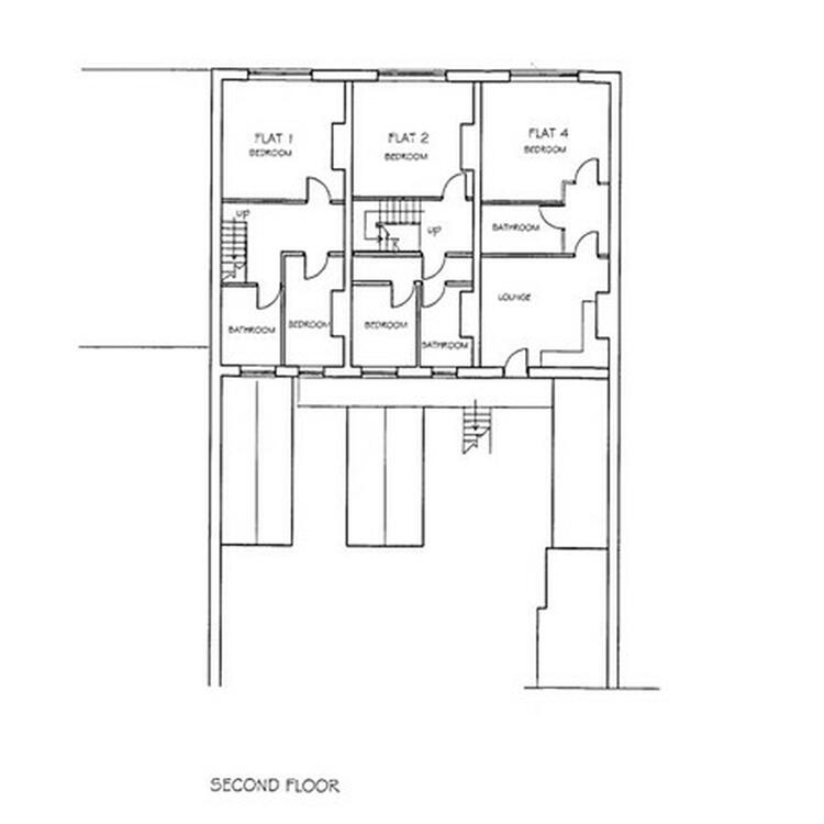
Over one floor, including lounge, kitchen, 1x bedroom and <br>bathroom. Let to a private individual at £595 per calendar month who has been in occupation for one year.
Over one floor, including lounge/bedroom, kitchen and <br>bathroom. Let to a private individual at £500 per calendar month who has been in occupation for four years.
Freehold. Subject to tenancy.
Auction Details
The sale of this property will take place on the stated date by way of Live streamed auction and is being sold under the Unconditional sale type.
Binding contracts will be exchanged at the point of sale.
All sales are subject to our Common Auction Conditions and Bidder Terms. Properties located in Scotland and Northern Ireland will be subject to applicable local laws.
Auction Deposit and Fees
The following deposits and non- refundable auctioneers fees apply:
• 5% deposit (subject to a minimum of £5,000)
• Buyer’s Fee of 3% of the purchase price
There may be additional fees listed in the Special Conditions of Sale, which will be available to view within the Legal Pack. You must read the Legal Pack carefully before bidding.
Additional Information
For full details about our auction processes, please refer to the Bidder Terms which can be viewed on our home page.
This explains the types of auction and sale methods we offer, the bidding registration process, your payment obligations, and how to view the Legal Pack (and any applicable home report for residential Scottish properties).
Guide Price & Reserve Price
Each property sold is subject to a Reserve Price. The Reserve Price will be within + or - 10% of the Guide Price. The Guide Price is issued solely as a guide so that a buyer can consider whether or not to pursue their interest. A full definition can be found within the Buyers Terms.





















