Land
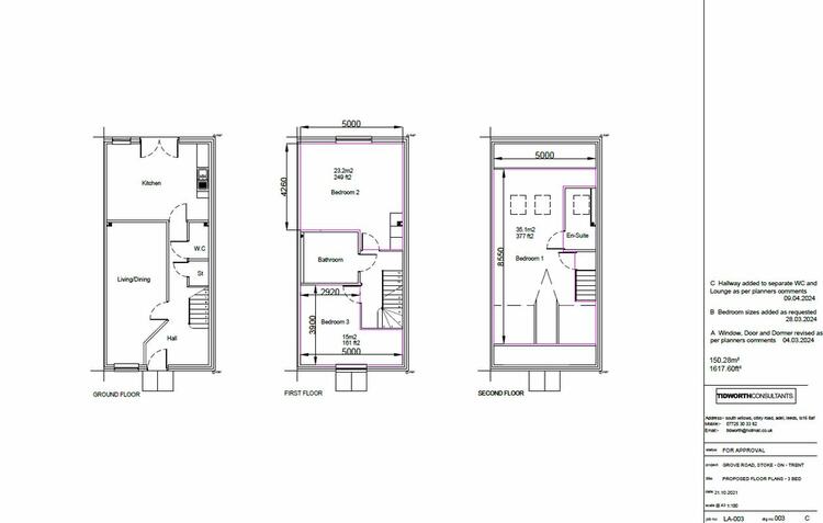
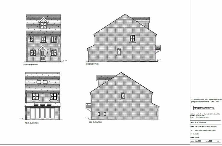
A freehold parcel of land extending to approximately 0.36 acres located along Grove Road benefitting from planning consent for the creation of 5 residential dwellings and associated landscaping and parking. The planning consists of 4 x 3 bed semis and 1 x 4 bed detached (5 dwellings valid until May 2027.)
The site is located in Heron Cross, on the outskirts of Fenton and forms an extension of existing housing stock along Grove Road. There is a junior school close to the site and access to the A50 dual carriageway is within half a mile. The site fronts Grove Road close to the Junction with Claud Street.
Interested parties are advised to inspect the legal pack for more information along with inspecting planning documents on the City of Stoke On Trent council planning portal number 70550/ful.
Note:
Please be advised that the auctioneers have not personally inspected the property. Prospective buyers are advised to make a viewing enquiry and any other necessary independent enquiries before placing their bid, as this will be binding.
Draft Sales Particulars:
These sales details are awaiting vendor approval
Freehold. Vacant possession upon completion.
Auction Details
The sale of this property will take place on the stated date by way of Live streamed auction and is being sold under the Unconditional sale type.
Binding contracts will be exchanged at the point of sale.
All sales are subject to our Common Auction Conditions and Bidder Terms. Properties located in Scotland and Northern Ireland will be subject to applicable local laws.
Auction Deposit and Fees
The following deposits and non- refundable auctioneers fees apply:
• 5% deposit (subject to a minimum of £5,000)
• Buyer’s Fee of 4.8% of the purchase price (subject to a minimum of £6,000 inc. VAT)
There may be additional fees listed in the Special Conditions of Sale, which will be available to view within the Legal Pack. You must read the Legal Pack carefully before bidding.
Additional Information
For full details about our auction processes, please refer to the Bidder Terms which can be viewed on our home page.
This explains the types of auction and sale methods we offer, the bidding registration process, your payment obligations, and how to view the Legal Pack (and any applicable home report for residential Scottish properties).
Guide Price & Reserve Price
Each property sold is subject to a Reserve Price. The Reserve Price will be within + or - 10% of the Guide Price. The Guide Price is issued solely as a guide so that a buyer can consider whether or not to pursue their interest. A full definition can be found within the Buyers Terms.




