Terraced House
A two/three bedroom, bay fronted, terraced property located in the West End of Leicester.
Currently rented to three sharers until 30th June 2026. Let at £1050 per calendar month exclusive of bills.
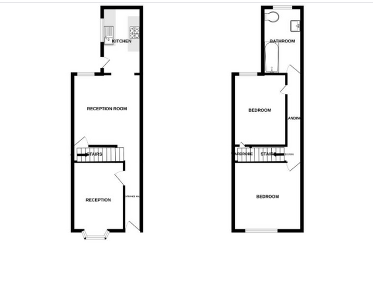
The property comprises of an entrance hallway, lounge, bedroom three / dining room and a kitchen to the ground floor, upstairs are two further bedrooms and a bathroom.
Well situated being close to Narborough Road with its choice of restaurants and coffee shops, and covenant for Leicester City Centre, Royal Infirmary, and De Montfort University.
Investment opportunity in a desirable letting location.
Radiator, double glazed window to rear aspect.
Fitted wardrobe, radiator, double glazed bay window to front aspect.
Fitted units with worktops, sink with drainer, electric hob with oven and extractor, plumbing for washing machine, space for fridge freezer, tiled floor, double glazed window and door to side aspect.
Stripped floor boards, radiator, double glazed window to front aspect.
Built in cupboard with access to loft, radiator, double glazed window to rear aspect.
Bath with electric shower, low level W.C, pedestal wash hand basin, built in cupboard housing boiler, part tiled walls, radiator, frosted double glazed window to rear aspect.
Small, walled garden to front. Slabbed courtyard garden to rear with three outbuildings, gate to rear.
Freehold. Subject to tenancy.
Auction Details
The sale of this property will take place on the stated date by way of Live streamed auction and is being sold under the Unconditional sale type.
Binding contracts will be exchanged at the point of sale.
All sales are subject to our Common Auction Conditions and Bidder Terms. Properties located in Scotland and Northern Ireland will be subject to applicable local laws.
Auction Deposit and Fees
The following deposits and non- refundable auctioneers fees apply:
• 5% deposit (subject to a minimum of £5,000)
• Buyer’s Fee of 4.8% of the purchase price (subject to a minimum of £6,000 inc. VAT)
There may be additional fees listed in the Special Conditions of Sale, which will be available to view within the Legal Pack. You must read the Legal Pack carefully before bidding.
Additional Information
For full details about our auction processes, please refer to the Bidder Terms which can be viewed on our home page.
This explains the types of auction and sale methods we offer, the bidding registration process, your payment obligations, and how to view the Legal Pack (and any applicable home report for residential Scottish properties).
Guide Price & Reserve Price
Each property sold is subject to a Reserve Price. The Reserve Price will be within + or - 10% of the Guide Price. The Guide Price is issued solely as a guide so that a buyer can consider whether or not to pursue their interest. A full definition can be found within the Buyers Terms.











