Commercial Property
A redevelopment opportunity comprising a detached period brick building situated in a prime position in the centre of Stockport. The property presents as two storeys to the Wellington Road South frontage and four storeys on to Mersey Square, and benefits from planning consent for redevelopment to provide ground floor commercial accommodation with 14no. apartments to the upper floors.
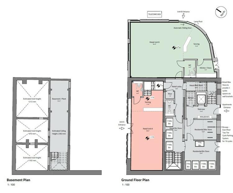
Plant Room - 32.00 Sq M - 344 Sq Ft
Retail Unit A - 57.00 Sq M - 614 Sq Ft<br><br>Retail Unit B - 88.00 Sq M - 947 Sq Ft
Apartment 1 - 53.00 Sq M - 570 Sq Ft<br><br>Apartment 2 - 40.00 Sq M - 431 Sq Ft<br><br>Apartment 3 - 59.00 Sq M - 635 Sq Ft<br><br>Apartment 4 - 51.00 Sq M - 549 Sq Ft
Apartment 5 - 54.00 Sq M - 581 Sq Ft<br><br>Apartment 6 - 43.00 Sq M - 463 Sq Ft<br><br>Apartment 7 - 60.00 Sq M - 646 Sq Ft<br><br>Apartment 8 - 51.00 Sq M - 549 Sq Ft
Apartment 9 - 54.00 Sq M - 581 Sq Ft
Apartment 10 - 43.00 Sq M - 463 Sq Ft
Apartment 11 - 60.00 Sq M - 646 Sq Ft
Apartment 12 - 51.00 Sq M - 549 Sq Ft
Apartment 13 - 40.00 Sq M - 431 Sq Ft<br><br>Apartment 14 - 47.00 Sq M - 506 Sq Ft
Freehold. Vacant possession upon completion.







