Commercial Property
A freehold large and prominently located three storey property of brick elevations with a pitched tiled roof which was comprehensively refurbished in 2012 as part of the
Burslem Improvement Grant Scheme.
The property has previously been used for both retail and office use, although lends itself to be converted into a HMO or similar with the potential for 5 rooms or 6 if the shop is also converted. Internally the property has gas central heating and single glazed timber windows. All rooms are carpeted and very little work is required internally. According to the council some sound installation, a fire alarm system and an additional landing on the top floor would be required for planning to be considered for a HMO.
LOCATION
The property is located towards the top of Waterloo Road at the junction with Nile Street and opposite the George Hotel and Swan Square. Burslem is ideally located off the A500 within easy reach of junctions 15 and 16 of the M6 motorway.
SERVICES
All main services are connected. No services have been tested by the agents.
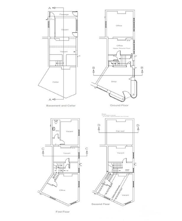
ACCOMMODATION
Shop Ground floor
Sales area 307 sq ft
Lower Ground
Back office 127 sq ft
Kitchen 118 sq ft
WC --
NIA 552 sq ft
Main Property
Ground floor
Room 1 141 sq ft
Room 2 212 sq ft
First floor
Room 1 267 sq ft
Room 2 156 sq ft
Room 3 237 sq ft
WC
Second floor
Room 1 179 sq ft
Room 2 288 sq ft
NIA 1,480 sq ft
Total NIA 2,032 sq ft
Interested parties are advised to inspect the legal pack for more information.
Freehold. Vacant possession upon completion.
Auction Details
The sale of this property will take place on the stated date by way of Live streamed auction and is being sold under the Unconditional sale type.
Binding contracts will be exchanged at the point of sale.
All sales are subject to our Common Auction Conditions and Bidder Terms. Properties located in Scotland and Northern Ireland will be subject to applicable local laws.
Auction Deposit and Fees
The following deposits and non- refundable auctioneers fees apply:
• 5% deposit (subject to a minimum of £5,000)
• Buyers Fee of 4.8% of the purchase price (subject to a minimum of £6,000 inc. VAT).
There may be additional fees listed in the Special Conditions of Sale, which will be available to view within the Legal Pack. You must read the Legal Pack carefully before bidding.
Additional Information
For full details about our auction processes, please refer to the Bidder Terms which can be viewed on our home page.
This explains the types of auction and sale methods we offer, the bidding registration process, your payment obligations, and how to view the Legal Pack (and any applicable home report for residential Scottish properties).
Guide Price & Reserve Price
Each property sold is subject to a Reserve Price. The Reserve Price will be within + or - 10% of the Guide Price. The Guide Price is issued solely as a guide so that a buyer can consider whether or not to pursue their interest. A full definition can be found within the Buyers Terms.










