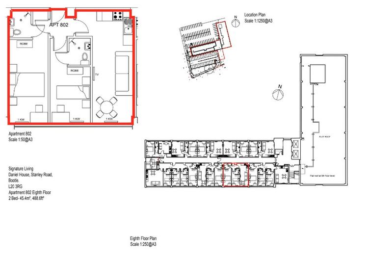
Apartment
A two bedroom leasehold apartment located within a purpose built block, offered with a tenant in situ paying £500pcm. The accommodation briefly comprises kitchen/living/dining area and two bedrooms with en-suites. Parking on site and gym access can be requested directly from the management company on site but are not included in the tenancy.
Note: The apartment is door number 802 but is registered at Land Registry as Flat 117, Daniel House, 31 Trinity Road, Bootle (L20 3TB).
The property benefits from excellent transport links and is within a short distance from Liverpool City Centre. The development sits on the corner of Trinity Road and Stanley Road and close to local amenities, schooling, Hugh Baird College and approximately 4 miles from Liverpool City Centre.
Interested parties are advised to inspect the legal pack for more information.
Leasehold. Subject to tenancy.
Auction Details
The sale of this property will take place on the stated date by way of Live streamed auction and is being sold under the Unconditional sale type.
Binding contracts will be exchanged at the point of sale.
All sales are subject to our Common Auction Conditions and Bidder Terms. Properties located in Scotland and Northern Ireland will be subject to applicable local laws.
Auction Deposit and Fees
The following deposits and non- refundable auctioneers fees apply:
• 5% deposit (subject to a minimum of £5,000)
• Buyer’s Fee of £4,000 inc. VAT
There may be additional fees listed in the Special Conditions of Sale, which will be available to view within the Legal Pack. You must read the Legal Pack carefully before bidding.
Additional Information
For full details about our auction processes, please refer to the Bidder Terms which can be viewed on our home page.
This explains the types of auction and sale methods we offer, the bidding registration process, your payment obligations, and how to view the Legal Pack (and any applicable home report for residential Scottish properties).
Guide Price & Reserve Price
Each property sold is subject to a Reserve Price. The Reserve Price will be within + or - 10% of the Guide Price. The Guide Price is issued solely as a guide so that a buyer can consider whether or not to pursue their interest. A full definition can be found within the Buyers Terms.



