Detached house
A 3-4 bedroom detached house in a popular and desirable location.
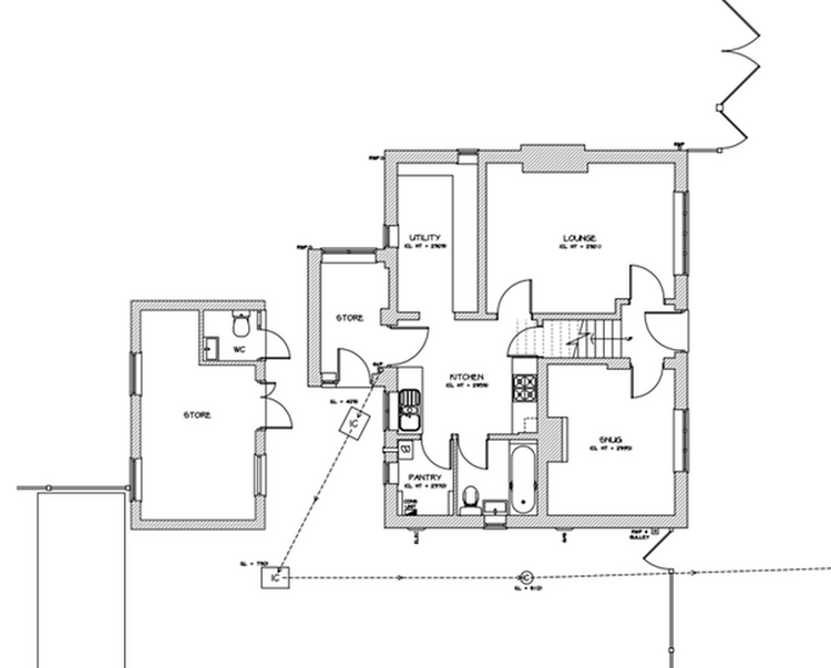
The property offers versatile accommodation along with ample parking to the front and garden to rear with outbuildings.
Situated in a highly desirable location with good local amenities and excellent transport links.
A great investment opportunity to make a lovely family home.
A building plot to the right hand side of the house will be sold in the same auction.
The main house and building plot will share an initial vehicle access but there is scope to add a private driveway, subject to dropped kerb permission.
With stairs off.
With window to front aspect and radiator.
Window to front and radiator.
With base and wall units, built in oven and hob, work surfaces with inset sink. Understairs cupboard, walk in pantry, window to rear and door to rear lobby.
With base and wall units, work surfaces, radiator and window to rear.
Comprising low flush w.c. wash hand basin and panel bath with shower over. Heated towel rail, tiled floor and walls and window to side.
Having low flush w.c and wash hand basin. Window to rear.
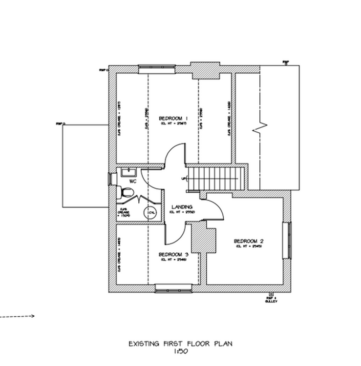
With radiator and window to front.
With radiator and window to front.
Having radiator and window to side.
Large plot with parking to front. Space to side which may offer scope for a double garage (subject to permission). Brick outbuildings to rear along with large patio and lawns.
Prospective buyers are to note the TP1 and transfer plan included within the legal documents.
These sales details are awaiting vendor approval.
Freehold. Vacant possession upon completion.
- Heating Supply: Double Glazing, Gas Central
- Electric Supply: Mains Supply
- Water Supply: Mains Supply
- Sewerage Arrangements: Mains Supply
Garage
Auction Details
The sale of this property will take place on the stated date by way of Auction Event and is being sold under an Unconditional sale type.
Binding contracts of sale will be exchanged at the point of sale.
All sales are subject to SDL Property Auctions Buyers Terms. Properties located in Scotland will be subject to applicable Scottish law.
Auction Deposit and Fees
The following deposits and non- refundable auctioneers fees apply:
• 5% deposit (subject to a minimum of £5,000)
• Buyers Fee of 4.8% of the purchase price (subject to a minimum of £6,000 inc. VAT).
The Buyers Fee does not contribute to the purchase price, however it will be taken into account when calculating the Stamp Duty Land Tax for the property (known as Land and Buildings Transaction Tax for properties located in Scotland), because it forms part of the chargeable consideration for the property.
There may be additional fees listed in the Special Conditions of Sale, which will be available to view within the Legal Pack. You must read the Legal Pack carefully before bidding.
Additional Information
For full details about all auction methods and sale types please refer to the Auction Conduct Guide which can be viewed on the SDL Property Auctions home page.
This guide includes details on the auction registration process, your payment obligations and how to view the Legal Pack (and any applicable Home Report for residential Scottish properties).
Guide Price & Reserve Price
Each property sold is subject to a Reserve Price. The Reserve Price will be within + or - 10% of the Guide Price. The Guide Price is issued solely as a guide so that a buyer can consider whether or not to pursue their interest. A full definition can be found within the Buyers Terms.



















