Detached house
***ATTRACTIVELY PRICED FREEHOLD INVESMTMENT***
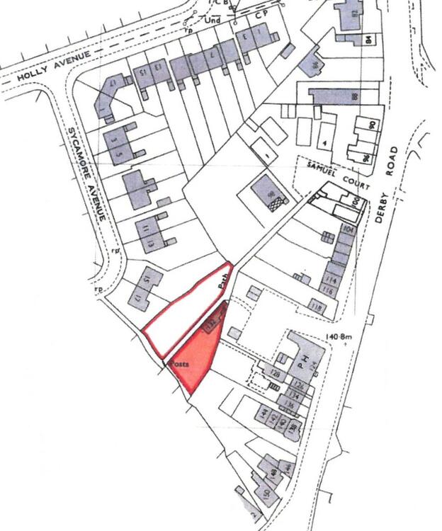
Tucked away in a secluded location close to the town centre, is a two bedroomed detached property in need of refurbishment, enjoying a larger than average private plot with potential to extend, subject to usual planning consents.
The property has undergone some improvements to include solar panel heating system, air source heat pump along with external solid wall insulation. Internally the uPVC double glazed living accommodation in brief comprises:- living room with front door, fitted kitchen, rear entrance porch with bathroom. To the first floor landing there are two well proportioned bedrooms. Outside the property offers potential for an extension subject to the usual planning consents.
The market town of Ripley has an excellent range of independent shops with numerous public houses/restaurants, Sainsburys supermarket along with numerous primary and secondary schools. There are excellent road network connections including the A38 which provides access onto the city of Derby and the M1 motorway. Excellent freehold investment opportunity.
Having uPVC double glazed window, tiled fireplace with open grate, quarry tiled floor, electricity meter and door to open front porch.
Having uPVC double glazed window.
With access to -
Having uPVC double glazed window. Fitted with a three piece suite in white comprising panelled bath, wash hand basin and low flush wc, fully tiled walls.
Leading to -
Having uPVC double glazed window.
Having uPVC double glazed window and airing cupboard.
The property sits on a generous sized level plot which is mainly lawned with pathways, boundary hedge and offers potential for an extension (stpc). There is a separate parcel of land also included within this sale and is located to the other side of the public footpath.
Freehold. Vacant possession upon completion.
Auction Details
The sale of this property will take place on the stated date by way of Auction Event and is being sold under and Unconditional sale type.
Binding contracts of sale will be exchanged at the point of sale.
All sales are subject to SDL Property Auctions Buyers Terms. Properties located in Scotland will be subject to applicable Scottish law.
Auction Deposit and Fees
The following deposits and non- refundable auctioneers fee apply:
• 10% deposit (subject to a minimum of £5,000)
• Buyers Fee of 1.2% of the purchase price (subject to a minimum of £1,500 inc. VAT)
The Buyers Fee does not contribute to the purchase price, however it will be taken into account when calculating the Stamp Duty Land Tax for the property (known as Land and Buildings Transaction Tax for properties located in Scotland), because it forms part of the chargeable consideration for the property.
There may be additional fees listed in the Special Conditions of Sale, which will be available to view within the Legal Pack. You must read the Legal Pack carefully before bidding.
Additional Information
For full details about all auction methods and sale types please refer to the Auction Conduct Guide which can be viewed on the SDL Property Auctions home page.
This guide includes details on the auction registration process, your payment obligations and how to view the Legal Pack (and any applicable Home Report for residential Scottish properties).
Guide Price & Reserve Price
Each property sold is subject to a Reserve Price. The Reserve Price will be within + or - 10% of the Guide Price. The Guide Price is issued solely as a guide so that a buyer can consider whether or not to pursue their interest. A full definition can be found within the Buyers Terms.



