Land
A development site with full planning permission for twenty three apartments.
The site is situated to the rear of Market Street in Heywood and bound by Earl Street, Bethel Street and Taylor Street. There is an abundance of local amenities on the door step including, shops, bars, restaurants and excellent transport links to Bury, Rochdale, Middleton and Manchester.
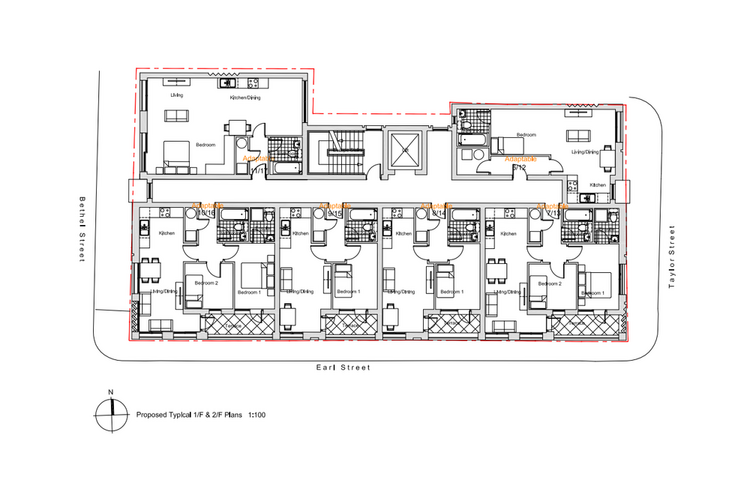
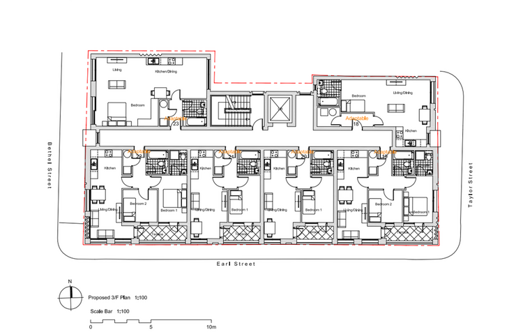
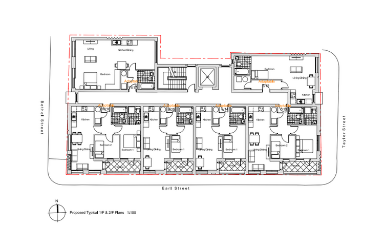
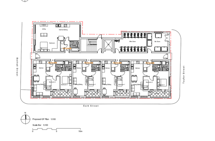
Full planning has been granted for twenty three apartments in a modern, four storey building. Planning Ref - Rochdale Council 23/00727/FUL.
Eight x Two Bedroom Apartments.
Eight x One Bedroom Apartments.
Seven x Studio Apartments.
A great development opportunity in popular and convenient location or as a potential build to rent.
Gross Internal Accommodation of 1162 sqm.
These sales details are awaiting vendor approval.
Any ground rent and service charge review periods will be confirmed in the lease documents within the legal pack.
We have not been provided with the freeholders title documents, we have been advised by the sellers solicitor's there is no freehold registered. Prospective buyers are advised to make all necessary independent enquiries prior to placing their bid as this will be binding.
Please be advised that the auctioneers have not personally inspected the property. Prospective buyers are advised to make a viewing enquiry and any other necessary independent enquiries before placing their bid, as this will be binding.
Leasehold. Vacant possession upon completion.
Auction Details
The sale of this property will take place on the stated date by way of Auction Event and is being sold under an Unconditional sale type.
Binding contracts of sale will be exchanged at the point of sale.
All sales are subject to SDL Property Auctions Buyers Terms. Properties located in Scotland will be subject to applicable Scottish law.
Auction Deposit and Fees
The following deposits and non- refundable auctioneers fees apply:
• 5% deposit (subject to a minimum of £5,000)
• Buyers Fee of 4.8% of the purchase price (subject to a minimum of £6,000 inc. VAT).
The Buyers Fee does not contribute to the purchase price, however it will be taken into account when calculating the Stamp Duty Land Tax for the property (known as Land and Buildings Transaction Tax for properties located in Scotland), because it forms part of the chargeable consideration for the property.
There may be additional fees listed in the Special Conditions of Sale, which will be available to view within the Legal Pack. You must read the Legal Pack carefully before bidding.
Additional Information
For full details about all auction methods and sale types please refer to the Auction Conduct Guide which can be viewed on the SDL Property Auctions home page.
This guide includes details on the auction registration process, your payment obligations and how to view the Legal Pack (and any applicable Home Report for residential Scottish properties).
Guide Price & Reserve Price
Each property sold is subject to a Reserve Price. The Reserve Price will be within + or - 10% of the Guide Price. The Guide Price is issued solely as a guide so that a buyer can consider whether or not to pursue their interest. A full definition can be found within the Buyers Terms.





