House of Multiple Occupation
A substantial four storey property with planning permission for conversion.
The property is in need of full renovation but offers extremely large accommodation throughout.
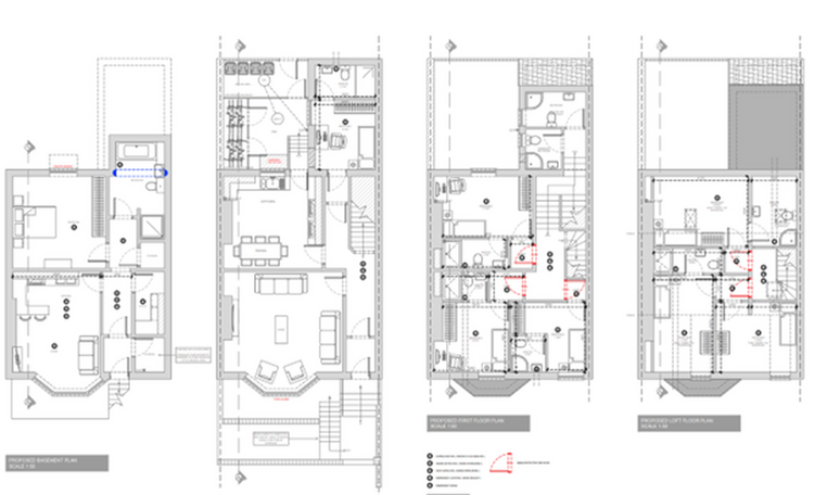
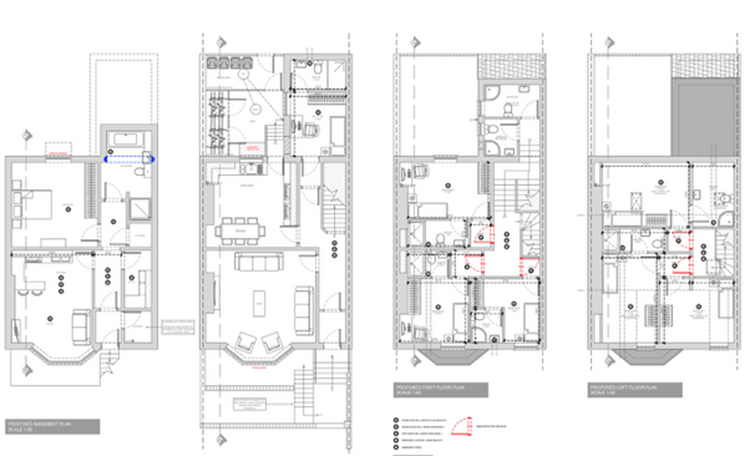
Planning for a seven bedroom HMO and One Bedroom Basement Flat.
Planning was granted in September 2023 (Ref H/2023/0136) for a spacious one bedroom basement apartment and a seven Bedroom, eight Bathroom HMO over the upper three floors.
Please See Proposed Floor Plans.
Well placed for a great range of local amenities and Hartlepool Town Centre along with Seaton Carew Beach.
An ideal investment opportunity with potential rental income of £33,000 per annum once renovated.
Hall, Lounge/Kitchen, Utility Room, Bedroom and Bathroom.
Communal Hallway, Communal Kitchen, Communal Lounge, Seven Bedrooms all with own shower rooms, Further extra communal shower room, Rear Yard with Bike and Bin Stores.
Please be advised that the auctioneers have not personally inspected the property. Prospective buyers are advised to make a viewing enquiry and any other necessary independent enquiries before placing their bid, as this will be binding.
Freehold. Vacant possession upon completion.
- Electric Supply: Mains Supply
- Water Supply: Mains Supply
- Sewerage Arrangements: Mains Supply
On Street
Auction Details
The sale of this property will take place on the stated date by way of Auction Event and is being sold under an Unconditional sale type.
Binding contracts of sale will be exchanged at the point of sale.
All sales are subject to SDL Property Auctions Buyers Terms. Properties located in Scotland will be subject to applicable Scottish law.
Auction Deposit and Fees
The following deposits and non- refundable auctioneers fees apply:
• 5% deposit (subject to a minimum of £5,000)
• Buyers Fee of 4.8% of the purchase price (subject to a minimum of £6,000 inc. VAT).
The Buyers Fee does not contribute to the purchase price, however it will be taken into account when calculating the Stamp Duty Land Tax for the property (known as Land and Buildings Transaction Tax for properties located in Scotland), because it forms part of the chargeable consideration for the property.
There may be additional fees listed in the Special Conditions of Sale, which will be available to view within the Legal Pack. You must read the Legal Pack carefully before bidding.
Additional Information
For full details about all auction methods and sale types please refer to the Auction Conduct Guide which can be viewed on the SDL Property Auctions home page.
This guide includes details on the auction registration process, your payment obligations and how to view the Legal Pack (and any applicable Home Report for residential Scottish properties).
Guide Price & Reserve Price
Each property sold is subject to a Reserve Price. The Reserve Price will be within + or - 10% of the Guide Price. The Guide Price is issued solely as a guide so that a buyer can consider whether or not to pursue their interest. A full definition can be found within the Buyers Terms.





















