Retail Property (High Street)
A freehold investment opportunity comprising two commercial units with associated office space on the first floor and established business to the ground floor, offered with current gross income of £14,400 per annum income.
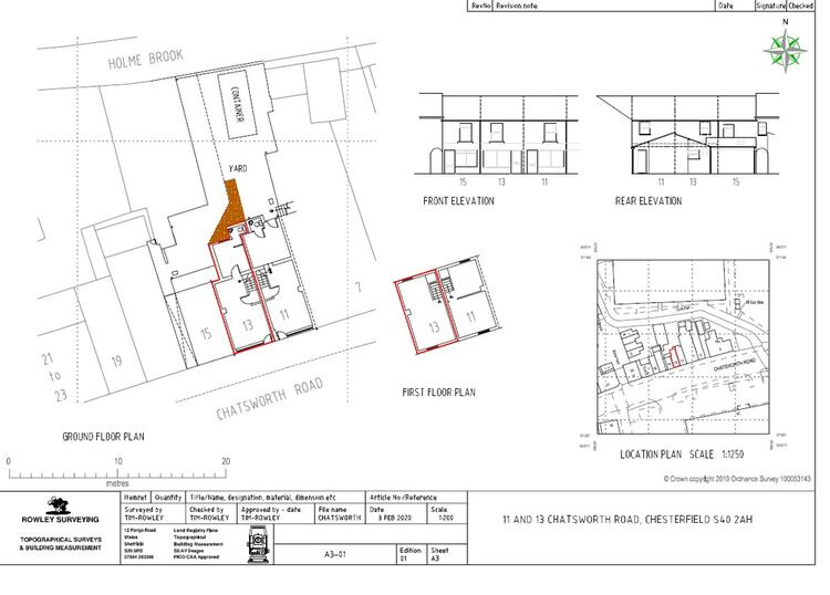
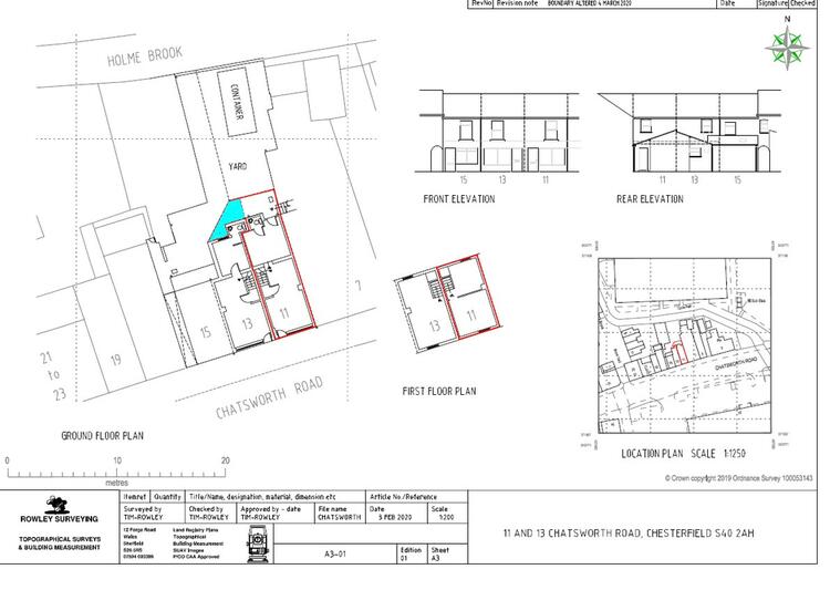
13 Chatsworth Road
Trading as Fitzgeralds café. This is held on a lease commencing 1st April 2025 for 3 years at a rent of £7,200. The unit comprises a ground floor cafe with first floor dining area. The VOA confirms Ground Floor 30.1 sq.m. plus First Floor 8.7 sq.m.
11 Chatsworth Road
Trading as Galaxy Travel. This is held under a 6-year lease ending 30 June 2026 at a rent of £7,200. The unit comprises a ground floor office with first floor office. The VOA confirms Ground Floor 34.1 sq.m. plus First Floor 21 sq.m.
The properties are located along Chatsworth road a short walk from Chesterfield Town Centre providing a good level of passing trade throughout the day.
Interested parties are advised to inspect the legal pack for more information.
Please be advised that the auctioneers have not personally inspected the property. Prospective buyers are advised to make a viewing enquiry and any other necessary independent enquiries before placing their bid, as this will be binding.
These sales details are awaiting vendor approval.
Freehold. Subject to tenancy.
Auction Details
The sale of this property will take place on the stated date by way of Auction Event and is being sold under an Unconditional sale type.
Binding contracts of sale will be exchanged at the point of sale.
All sales are subject to SDL Property Auctions Buyers Terms. Properties located in Scotland will be subject to applicable Scottish law.
Auction Deposit and Fees
The following deposits and non- refundable auctioneers fees apply:
• 5% deposit (subject to a minimum of £5,000)
• Buyers Fee of 3.6% of the purchase price (subject to a minimum of £6,000 inc. VAT).
The Buyers Fee does not contribute to the purchase price, however it will be taken into account when calculating the Stamp Duty Land Tax for the property (known as Land and Buildings Transaction Tax for properties located in Scotland), because it forms part of the chargeable consideration for the property.
There may be additional fees listed in the Special Conditions of Sale, which will be available to view within the Legal Pack. You must read the Legal Pack carefully before bidding.
Additional Information
For full details about all auction methods and sale types please refer to the Auction Conduct Guide which can be viewed on the SDL Property Auctions home page.
This guide includes details on the auction registration process, your payment obligations and how to view the Legal Pack (and any applicable Home Report for residential Scottish properties).
Guide Price & Reserve Price
Each property sold is subject to a Reserve Price. The Reserve Price will be within + or - 10% of the Guide Price. The Guide Price is issued solely as a guide so that a buyer can consider whether or not to pursue their interest. A full definition can be found within the Buyers Terms.





