Residential Development
Historic building with planning permission to convert into apartments.
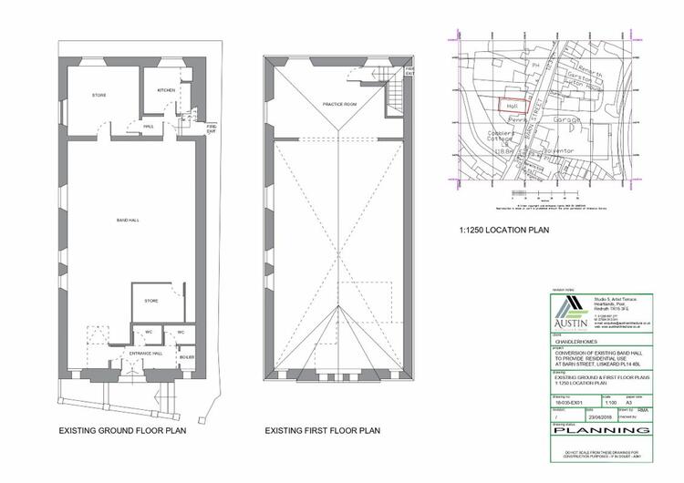
A detached former band hall in Liskeard with planning permission to convert into four apartments. Work on the conversion has started and we have been advised that most of the structural work has been completed, including installation of a first floor and supporting walls.
Details of the approved planning permission and its conditions can be found on the Cornwall Planning Portal using the reference PA20/06535.
A chance to purchase a detached Henry Rice former band hall. The property now has the added benefit of planning permission approved for its conversion into four apartments. There is the possibility to seek approval of adapting the planning permission for more flats within the building given the space on offer.
The accommodation, in brief, mainly consists of the main hall at ground floor level with a separate room to the rear of the building. Stairs rise from the rear hallway area to a mezzanine area, which was formerly used as a practice room, and opening overlooking the main hall.
Small area to the front, bordered by a low wall and pathway to the front door.
Approximately 144 square metres internally (excluding the first-floor mezzanine).
Freehold. Vacant possession upon completion.
Auction Details
The sale of this property will take place on the stated date by way of Auction Event and is being sold under and Unconditional sale type.
Binding contracts of sale will be exchanged at the point of sale.
All sales are subject to SDL Property Auctions Buyers Terms. Properties located in Scotland will be subject to applicable Scottish law.
Auction Deposit and Fees
The following deposits and non- refundable auctioneers fee apply:
• 10% deposit (subject to a minimum of £5,000)
• Buyers Fee of 1.8% of the purchase price (subject to a minimum of £2,400 inc. VAT)
The Buyers Fee does not contribute to the purchase price, however it will be taken into account when calculating the Stamp Duty Land Tax for the property (known as Land and Buildings Transaction Tax for properties located in Scotland), because it forms part of the chargeable consideration for the property.
There may be additional fees listed in the Special Conditions of Sale, which will be available to view within the Legal Pack. You must read the Legal Pack carefully before bidding.
Additional Information
For full details about all auction methods and sale types please refer to the Auction Conduct Guide which can be viewed on the SDL Property Auctions home page.
This guide includes details on the auction registration process, your payment obligations and how to view the Legal Pack (and any applicable Home Report for residential Scottish properties).
Guide Price & Reserve Price
Each property sold is subject to a Reserve Price. The Reserve Price will be within + or - 10% of the Guide Price. The Guide Price is issued solely as a guide so that a buyer can consider whether or not to pursue their interest. A full definition can be found within the Buyers Terms.
















