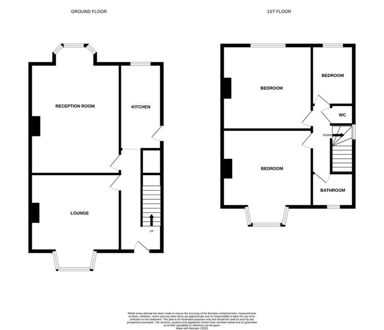
Semi-detached house
This extended, three bedroom semi detached property has been vacant for many years and provides a rare project in a prime area of Headingley, Leeds. In need of significant refurbishment, buyers should look to improve the property, adding value, and sell on to a queue of homebuyers for a profit. Very few properties come up for sale in the area which is usually an indication of a highly desirable location.
Located close to Headingley centre amenities, including restaurants, cafes and supermarkets. Bus routes, on the nearby Otley Road, go directly into Leeds city centre.
Please note - Viewers are encouraged to bring sturdy footwear and a torch as the windows, to the ground floor, are currently boarded.
These sales details are awaiting vendor approval.
Prospective buyers are referred to the S215 Notice within the legal pack and also to the seller's response to point 3 of the Property Information Form and are advised to make all necessary independent enquiries prior to placing their bid as this will be binding.
Freehold. Vacant possession upon completion.
Auction Details
The sale of this property will take place on the stated date by way of Auction Event and is being sold under and Unconditional sale type.
Binding contracts of sale will be exchanged at the point of sale.
All sales are subject to SDL Property Auctions Buyers Terms. Properties located in Scotland will be subject to applicable Scottish law.
Auction Deposit and Fees
The following deposits and non- refundable auctioneers fee apply:
• 10% deposit (subject to a minimum of £5,000)
• Buyers Fee of 1.2% of the purchase price (subject to a minimum of £1,500 inc. VAT)
The Buyers Fee does not contribute to the purchase price, however it will be taken into account when calculating the Stamp Duty Land Tax for the property (known as Land and Buildings Transaction Tax for properties located in Scotland), because it forms part of the chargeable consideration for the property.
There may be additional fees listed in the Special Conditions of Sale, which will be available to view within the Legal Pack. You must read the Legal Pack carefully before bidding.
Additional Information
For full details about all auction methods and sale types please refer to the Auction Conduct Guide which can be viewed on the SDL Property Auctions home page.
This guide includes details on the auction registration process, your payment obligations and how to view the Legal Pack (and any applicable Home Report for residential Scottish properties).
Guide Price & Reserve Price
Each property sold is subject to a Reserve Price. The Reserve Price will be within + or - 10% of the Guide Price. The Guide Price is issued solely as a guide so that a buyer can consider whether or not to pursue their interest. A full definition can be found within the Buyers Terms.













