Residential Development
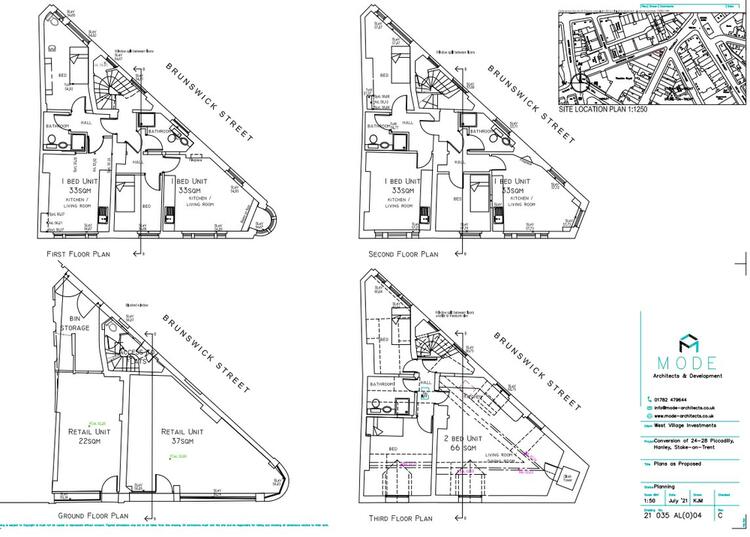
A prominent and well known building of ornate design offered with vacant possession upon completion. The ground floor has been sold off separately and we are offering the upper floors which have detailed planning permission to create 4 x one-bedroom apartments and 1 x two-bedroom apartment with access off Brunswick Street.
Planning was granted by Stoke on Trent City Council on the 20th March 2023
under Application number 67757/FUL.
The site enjoys a prominent position on Piccadilly, a pedestrianised section of Hanley city centre within the Cultural Quarter where a plethora of independent bars, restaurants and
shops are located. The building is a well known landmark in the city with its clocktower, which is incorporated into the scheme. The buyer will obtain the freehold of the building whilst the seller will retain the long leasehold interest in the two ground
floor retail units.
LOCATION
The building is located towards the top of Piccadilly and just a 2 minute walk from The Potteries Shopping Centre. Hanley can be accessed from the A500 via the A52 and A53 and is around 6 miles from junction 15 of the M6
These sales details are awaiting vendor approval.
See Legal Pack. Vacant possession upon completion.
Auction Details
The sale of this property will take place on the stated date by way of Auction Event and is being sold under an Unconditional sale type.
Binding contracts of sale will be exchanged at the point of sale.
All sales are subject to SDL Property Auctions Buyers Terms. Properties located in Scotland will be subject to applicable Scottish law.
Auction Deposit and Fees
The following deposits and non- refundable auctioneers fees apply:
• 5% deposit (subject to a minimum of £5,000)
• Buyers Fee of 4.8% of the purchase price (subject to a minimum of £6,000 inc. VAT).
The Buyers Fee does not contribute to the purchase price, however it will be taken into account when calculating the Stamp Duty Land Tax for the property (known as Land and Buildings Transaction Tax for properties located in Scotland), because it forms part of the chargeable consideration for the property.
There may be additional fees listed in the Special Conditions of Sale, which will be available to view within the Legal Pack. You must read the Legal Pack carefully before bidding.
Additional Information
For full details about all auction methods and sale types please refer to the Auction Conduct Guide which can be viewed on the SDL Property Auctions home page.
This guide includes details on the auction registration process, your payment obligations and how to view the Legal Pack (and any applicable Home Report for residential Scottish properties).
Guide Price & Reserve Price
Each property sold is subject to a Reserve Price. The Reserve Price will be within + or - 10% of the Guide Price. The Guide Price is issued solely as a guide so that a buyer can consider whether or not to pursue their interest. A full definition can be found within the Buyers Terms.











