Land
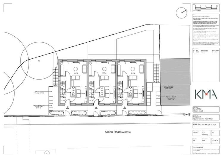
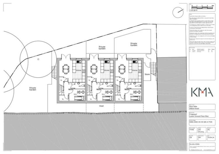
A freehold parcel of land of approx. 395 Sq M (0.1 Acre) with full planning permission for the construction of X3 three-bedroom townhouses, set across three storeys in a well-established location.
Located on Albion Road the approved development includes the demolition of part of the existing boundary wall fronting Albion Road, providing direct access to each new property.
The proposed homes will offer modern layouts with spacious living areas, multiple bathrooms and will be in excess of 1,200 Sq ft ( 114 Sq M) per dwelling and outside will provide private garden spaces and off street parking.
Details of the planning permission can be found on the highpeak.gov.uk website under planning ref; HPK/2024/0194.
999 years (less 10 days) from 24 June 1862. Any ground rent and service charge review periods will be confirmed in the lease documents within the legal pack.
These sales details are awaiting vendor approval.
Leasehold. Vacant possession upon completion.
Auction Details
The sale of this property will take place on the stated date by way of Auction Event and is being sold under and Unconditional sale type.
Binding contracts of sale will be exchanged at the point of sale.
All sales are subject to SDL Property Auctions Buyers Terms. Properties located in Scotland will be subject to applicable Scottish law.
Auction Deposit and Fees
The following deposits and non- refundable auctioneers fee apply:
• 10% deposit (subject to a minimum of £5,000)
• Buyers Fee of 2.4% of the purchase price (subject to a minimum of £1,500 inc. VAT)
The Buyers Fee does not contribute to the purchase price, however it will be taken into account when calculating the Stamp Duty Land Tax for the property (known as Land and Buildings Transaction Tax for properties located in Scotland), because it forms part of the chargeable consideration for the property.
There may be additional fees listed in the Special Conditions of Sale, which will be available to view within the Legal Pack. You must read the Legal Pack carefully before bidding.
Additional Information
For full details about all auction methods and sale types please refer to the Auction Conduct Guide which can be viewed on the SDL Property Auctions home page.
This guide includes details on the auction registration process, your payment obligations and how to view the Legal Pack (and any applicable Home Report for residential Scottish properties).
Guide Price & Reserve Price
Each property sold is subject to a Reserve Price. The Reserve Price will be within + or - 10% of the Guide Price. The Guide Price is issued solely as a guide so that a buyer can consider whether or not to pursue their interest. A full definition can be found within the Buyers Terms.








