End of terrace house
An excellent opportunity to acquire a two-bedroom, mid-terraced property, requiring refurbishment and featuring two reception rooms, a downstairs W.C and being within walking distance of the main Alvaston shopping centre.
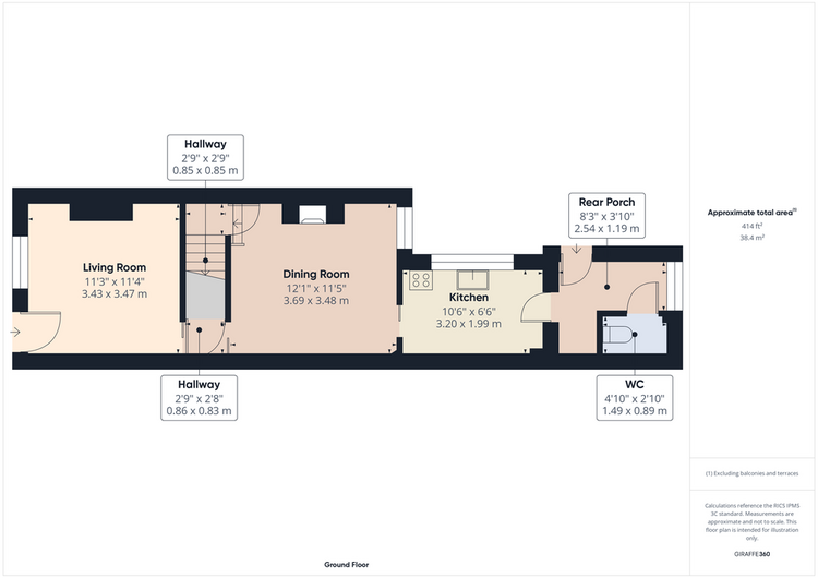
In brief, the accommodation comprises; living room, mid hallway with stairs leading down to the cellar, a separate dining room and a fitted kitchen with a rear porch and W.C. To the first floor, there is galleried style landing , two double bedrooms, and a bathroom having a three piece suite with walk in shower.
Outside there is a good size rear garden with mature shrubs and bushes and space to extend subject to relevant planning permissions and to the front on street parking.
With excellent access to local amenities, Rolls-Royce, Pride Park and Alvaston's road links including the A50, A6 and M1 and further regional business centre.
3.43 m x 3.45 m (11ft 3 x 11ft 4)
3.68 m x 3.48 m (12'1" x 11'5")
3.20 m x 1.98 m (10'6" x 6'6")
2.51 m x 1.17 m (8'3" x 3'10")
1.47 m x 0.86 m (4'10" x 2'10")
3.45 m x 3.45 m (11'4" x 11'4")
3.68 m x 2.64 m (12'1" x 8'8")
2.59 m x 2.01 m (8'6" x 6'7")
Please be advised that whilst our joint agent has conducted an inspection, the auctioneers have not personally inspected the property. Prospective buyers are advised to make a viewing enquiry and any other necessary independent enquiries before placing their bid, as this will be binding.
Freehold. Vacant possession upon completion.
On Street
Auction Details
The sale of this property will take place on the stated date by way of Auction Event and is being sold under an Unconditional sale type.
Binding contracts of sale will be exchanged at the point of sale.
All sales are subject to SDL Property Auctions Buyers Terms. Properties located in Scotland will be subject to applicable Scottish law.
Auction Deposit and Fees
The following deposits and non- refundable auctioneers fees apply:
• 5% deposit (subject to a minimum of £5,000)
• Buyers Fee of 4.8% of the purchase price (subject to a minimum of £6,000 inc. VAT).
The Buyers Fee does not contribute to the purchase price, however it will be taken into account when calculating the Stamp Duty Land Tax for the property (known as Land and Buildings Transaction Tax for properties located in Scotland), because it forms part of the chargeable consideration for the property.
There may be additional fees listed in the Special Conditions of Sale, which will be available to view within the Legal Pack. You must read the Legal Pack carefully before bidding.
Additional Information
For full details about all auction methods and sale types please refer to the Auction Conduct Guide which can be viewed on the SDL Property Auctions home page.
This guide includes details on the auction registration process, your payment obligations and how to view the Legal Pack (and any applicable Home Report for residential Scottish properties).
Guide Price & Reserve Price
Each property sold is subject to a Reserve Price. The Reserve Price will be within + or - 10% of the Guide Price. The Guide Price is issued solely as a guide so that a buyer can consider whether or not to pursue their interest. A full definition can be found within the Buyers Terms.











