Land
Available to the market is this unique opportunity for a self-builder wishing to build the perfect mix of four properties or alternatively refurbish the existing bungalow and have a site of two new build bungalows to the rear, within this popular and highly regarded location in Stapleford.
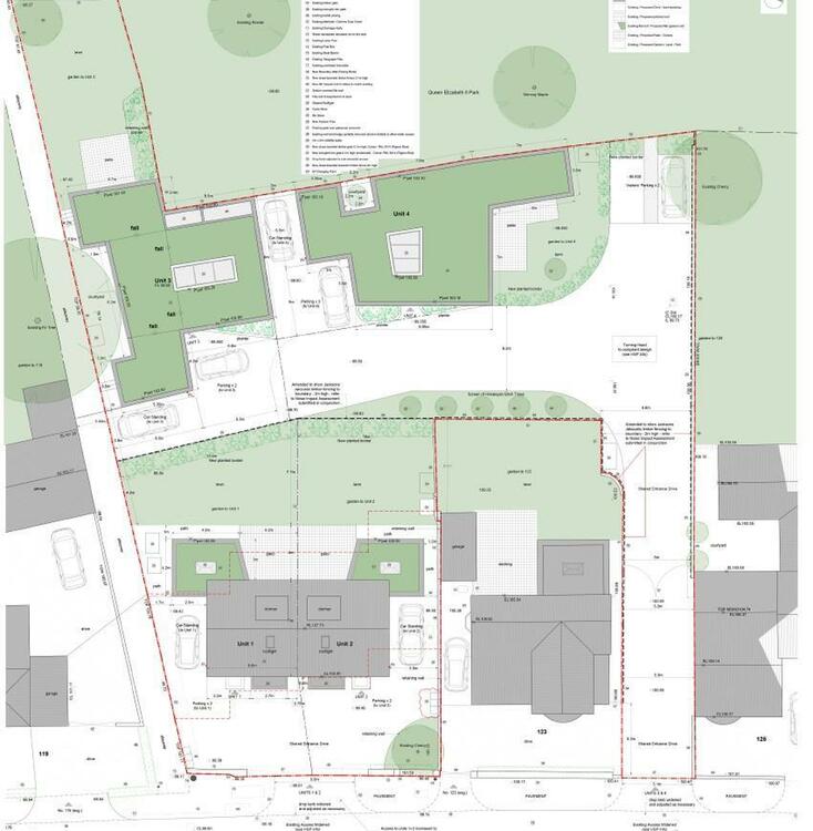
The site, to be known as Brookhill Mews - It is set in an arcadian setting adjacent to the Queen Elizabeth II Park within easy striking distance of all of Staplefords facilities and travel connections, such as the A52, M1 and tram services.
The total area of the site is approx 1598m2 / 0.16ha/ 0.4acres.
Units 3 and 4 offer private accommodation accessed from a gated drive with their own parking areas for three cars each, private garden areas and terraces/courtyards. Both units offer low energy design with features such as green roofs for enhanced biodiversity and with the potential for rainwater collection, seamlessly integrating them with their parkland context.
Units 1 and 2 sit at the front of the site and will also benefit from parking for two cars each, gardens and views over the parkland to the rear along with open plan living, green roofs and roof lanterns.
There is also the benefit of two extra visitors spaces to the rear of the development.
With extremely popular schooling nearby, including William Lilley, Fairfield and George Spencer Academy catering for ages from nursery to college, all ages of schooling can be covered from this location. There is also easy access to open countryside alongside many shops, services and amenities within the Town Centre which over the coming years is to also benefit from a government backed Towns deal seeing significant investment in the local area.
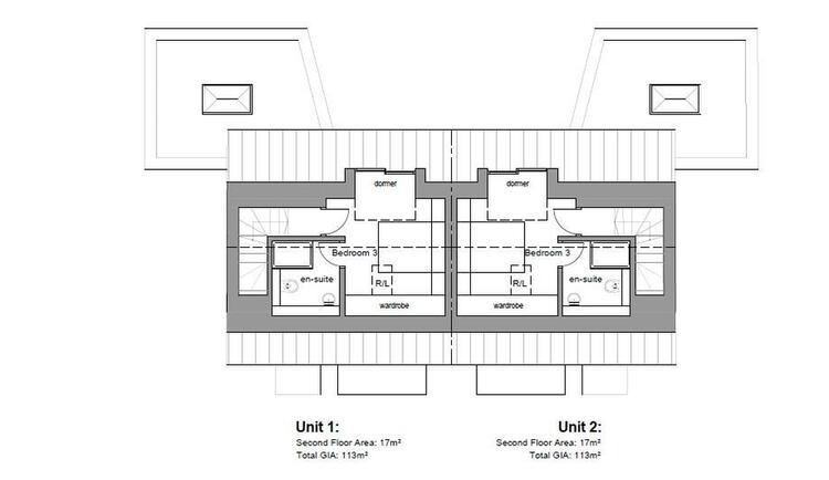
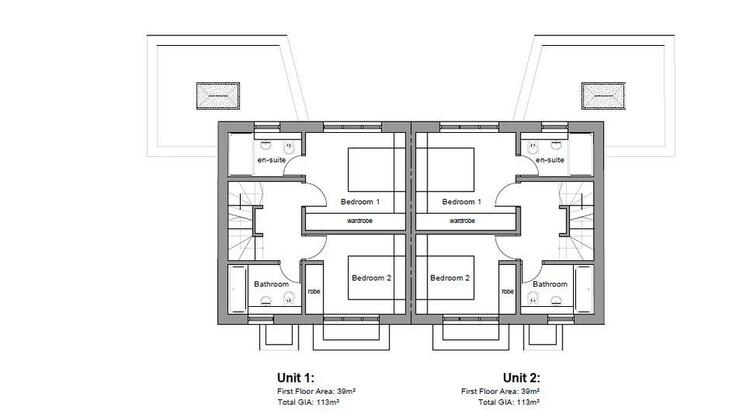
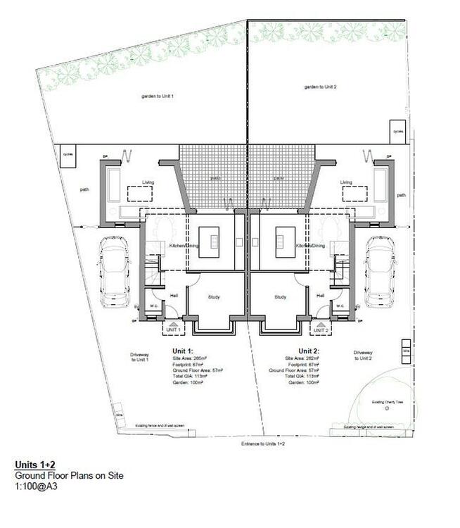
Unit 1:
Site Area 265m²
GIA 113m²
Garden Area 100m²
Unit 2:
Site Area 262m²
GIA 113m²
Garden Area 100m²
Units 1 and 2 sit at the front of the development fronting Brookhill Street. These units will come following the demolition of the bungalow that currently occupies the plot.
Units 1 and 2 are a pair of semi detached properties set over 3 floors providing 3 bedrooms each.
Another option for the site will be to keep and renovate (or replace) the current bungalow and have a site of two new build bungalows to the rear. This would then offer a site of three detached bungalows, and minimise build costs.
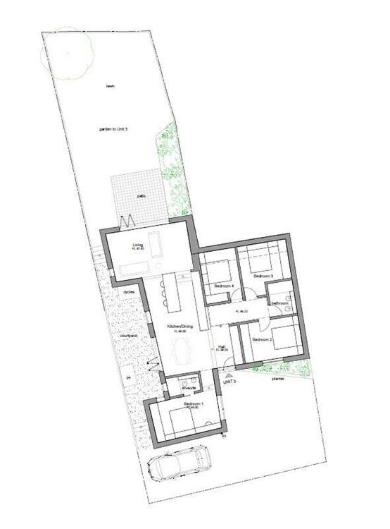
Unit 3:
Site Area: 353m²
4 bedroom bungalow: 119m2
Garden: 134m²
Unit 3 is a 4 bedroom bungalow, 119m² total internal area, with a private garden beyond extending to a further 134m² and private parking for three cars. It provides an open plan kitchen/dining space which looks onto a courtyard with bi-fold doors and then steps down to a connected but distinct living space, with its own bi-fold doors opening onto the rear garden via a patio area. An en-suite master bedroom suite is located separately at the end of the living wing whilst three further (double) bedrooms share a family bathroom and are all accessed directly from the top-lit hall. Externally, in addition to distinct garden, courtyard and parking areas there is also cycle storage, bin storage, feature planters and charging for electric vehicles incorporated into the design.
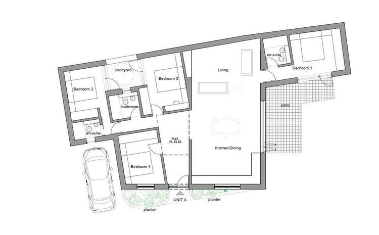
Unit 4:
Site Area: 265m²,
4 bedroom bungalow: 118m²
Garden: 72m2
Unit 4 is a 4 bedroom bungalow, 118m² total internal area, with a 72m² south facing garden. The patio opens seamlessly off the main kitchen/dining space and links to the master bedroom. The design provides for level access throughout. It has both an en-suite mater bedroom and and an en-suite guest bedroom, at either end of the house, with a pair of further (double) bedrooms sharing a courtyard and a family bathroom. The main open plan kitchen/dining and living spaces open off the top-lit hall and onto the garden and terrace beyond. Externally, in addition to distinct garden, courtyard and parking areas there is also cycle storage, bin storage, feature planters and charging for electric vehicles incorporated into the design.
An additional benefit to both units 3 and 4 is that they will be accessed from their own private drive with electric gates.
The marketing images are for illustrative purposes only.
The vendor has informed us there is a historic covenant from 1923 which relates to only building certain types of dwellings, all of which they have complied with.
Freehold. Vacant possession upon completion.
- Heating Supply: Gas
- Electric Supply: Mains Supply
- Water Supply: Mains Supply
- Sewerage Arrangements: Mains Supply
Driveway
Auction Details
The sale of this property will take place on the stated date by way of Auction Event and is being sold under an Unconditional sale type.
Binding contracts of sale will be exchanged at the point of sale.
All sales are subject to SDL Property Auctions Buyers Terms. Properties located in Scotland will be subject to applicable Scottish law.
Auction Deposit and Fees
The following deposits and non- refundable auctioneers fees apply:
• 5% deposit (subject to a minimum of £5,000)
• Buyers Fee of 4.8% of the purchase price (subject to a minimum of £6,000 inc. VAT).
The Buyers Fee does not contribute to the purchase price, however it will be taken into account when calculating the Stamp Duty Land Tax for the property (known as Land and Buildings Transaction Tax for properties located in Scotland), because it forms part of the chargeable consideration for the property.
There may be additional fees listed in the Special Conditions of Sale, which will be available to view within the Legal Pack. You must read the Legal Pack carefully before bidding.
Additional Information
For full details about all auction methods and sale types please refer to the Auction Conduct Guide which can be viewed on the SDL Property Auctions home page.
This guide includes details on the auction registration process, your payment obligations and how to view the Legal Pack (and any applicable Home Report for residential Scottish properties).
Guide Price & Reserve Price
Each property sold is subject to a Reserve Price. The Reserve Price will be within + or - 10% of the Guide Price. The Guide Price is issued solely as a guide so that a buyer can consider whether or not to pursue their interest. A full definition can be found within the Buyers Terms.























