End of terrace house
A two bedroom end town house with building plot to the side.
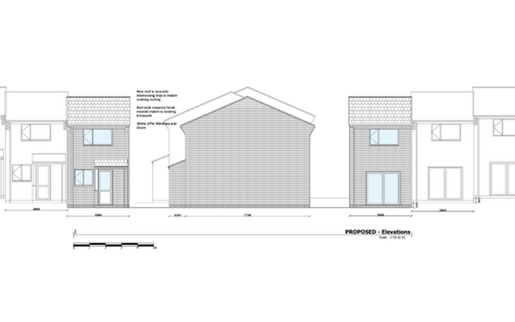
The site offers a two bedroom townhouse standing on a corner plot. Planning permission has been granted for a further two storey dwelling to be erected to the right hand side of the property.
Planning Ref- 23/00154/FUL - full plans can be seen on Hinckley and Bosworth Council Website.
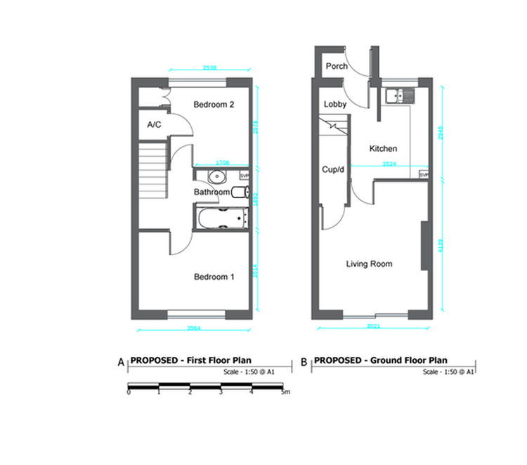
The current house comprises- Lounge, Kitchen, Landing, 2 Bedrooms, Bathroom. Gardens to front side and rear.
The new build house will comprise- Lobby, Kitchen, Lounge, Landing, 2 Bedrooms, Bathroom. Gardens to front and rear. (see floor plan for layout)
Well positioned for local amenities and schooling and giving easy access to Hinckley Town Centre and transport links including the A5, M69 and Train Station.
A real investment opportunity.
02, EE, Vodaphone and Three available at this address.
Standard construction.
Rivers, Seas and Surface Water - Very Low
Standard, Superfast and Ultrafast available at this address.
These sales details are awaiting vendor approval.
Freehold. Vacant possession upon completion.
- Heating Supply: Double Glazing, Gas Central
- Electric Supply: Mains Supply
- Water Supply: Mains Supply
- Sewerage Arrangements: Mains Supply
On Street, Allocated
Auction Details
The sale of this property will take place on the stated date by way of Auction Event and is being sold under an Unconditional sale type.
Binding contracts of sale will be exchanged at the point of sale.
All sales are subject to SDL Property Auctions Buyers Terms. Properties located in Scotland will be subject to applicable Scottish law.
Auction Deposit and Fees
The following deposits and non- refundable auctioneers fees apply:
• 5% deposit (subject to a minimum of £5,000)
• Buyers Fee of 4.8% of the purchase price (subject to a minimum of £6,000 inc. VAT).
The Buyers Fee does not contribute to the purchase price, however it will be taken into account when calculating the Stamp Duty Land Tax for the property (known as Land and Buildings Transaction Tax for properties located in Scotland), because it forms part of the chargeable consideration for the property.
There may be additional fees listed in the Special Conditions of Sale, which will be available to view within the Legal Pack. You must read the Legal Pack carefully before bidding.
Additional Information
For full details about all auction methods and sale types please refer to the Auction Conduct Guide which can be viewed on the SDL Property Auctions home page.
This guide includes details on the auction registration process, your payment obligations and how to view the Legal Pack (and any applicable Home Report for residential Scottish properties).
Guide Price & Reserve Price
Each property sold is subject to a Reserve Price. The Reserve Price will be within + or - 10% of the Guide Price. The Guide Price is issued solely as a guide so that a buyer can consider whether or not to pursue their interest. A full definition can be found within the Buyers Terms.














