Commercial Property
A freehold industrial site comprising 5 units extending in total to 19,704 sq.ft (NIA) of steel portal frame construction, offered part let. Current gross income of £51,750 per annum with two vacant units and scope to achieve in access of £100,000 per annum when fully let at market rates.
The site benefits from land to the rear which may be suitable for development, subject to obtaining planning permission.
The sites sits close to the A61 north of Chesterfield giving excellent access to the road network with Sheffield a short distance to the north.
Interested parties are advised to inspect the legal pack for more information.
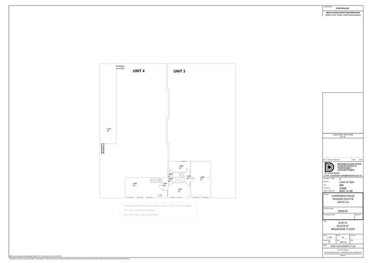
Extends to 4,453 sq.ft and is held on a 3 year term commencing 01/01/24.
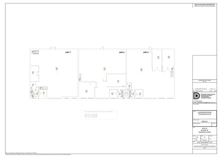
Extends to 4,800 sq.ft and is offered with vacant possession upon completion.
Extends to 3,455 sq.ft and is held on a 6 year term commencing 01/08/23.
Extends to 3,498 sq.ft and is offered with vacant possession upon completion. We are informed by the seller that this unit requires re-roofing.
Extends to 3,498 sq.ft and is held on a 5 year lease commencing 01/10/22.
Address known at the land registry as 'Land & Buildings on the North side of Carrwood Road Chesterfield'. Prospective buyers are to note the Note of Issues included within the legal documents. The LOT is not sold with vacant possession but is sold subject to all and any known and unknown tenancies, licences, wayleaves and other occupation and/or interests affecting the LOT. Prospective buyers are advised to make all necessary independent enquiries prior to placing their bid as this will be binding.
Freehold. See legal pack.
Auction Details
The sale of this property will take place on the stated date by way of Auction Event and is being sold under and Unconditional sale type.
Binding contracts of sale will be exchanged at the point of sale.
All sales are subject to SDL Property Auctions Buyers Terms. Properties located in Scotland will be subject to applicable Scottish law.
Auction Deposit and Fees
The following deposits and non- refundable auctioneers fee apply:
• 10% deposit (subject to a minimum of £5,000)
• Buyers Fee of £1,500 inc. VAT
The Buyers Fee does not contribute to the purchase price, however it will be taken into account when calculating the Stamp Duty Land Tax for the property (known as Land and Buildings Transaction Tax for properties located in Scotland), because it forms part of the chargeable consideration for the property.
There may be additional fees listed in the Special Conditions of Sale, which will be available to view within the Legal Pack. You must read the Legal Pack carefully before bidding.
Additional Information
For full details about all auction methods and sale types please refer to the Auction Conduct Guide which can be viewed on the SDL Property Auctions home page.
This guide includes details on the auction registration process, your payment obligations and how to view the Legal Pack (and any applicable Home Report for residential Scottish properties).
Guide Price & Reserve Price
Each property sold is subject to a Reserve Price. The Reserve Price will be within + or - 10% of the Guide Price. The Guide Price is issued solely as a guide so that a buyer can consider whether or not to pursue their interest. A full definition can be found within the Buyers Terms.




















