Commercial Property
A part let modern mixed retail/commercial development built in 2022 comprising three ground floor retail units, three first floor office/retail units to the first floor, and storage unit to the second floor. The property still benefits from the 10 year new build warranty and has a current total income of Current income £43,000 per annum with three out of the seven units let.
There is also potential for additional alternative use to upper floor accommodation (subject to planning).
The property is situated on the corner of Alum Rock Road and Thornton Road, in a prominent location on Pelham Shopping Centre in a densely populated residential location. There is a large forecourt area and shared rear service access via Thornton Road.
Location:
The property is situated on the corner of Alum Rock Road and Thornton Road, in a prominent location on Pelham Shopping Centre in a densely populated residential location, conveniently situated;
-Circa. 0.5 miles from Alum Rock and Fox and Goose District Shopping Centre.
-Circa. 0.5 miles from upcoming Washward Heath HS2 Depo.
-Circa 0.9 miles from Birmingham Heartlands Hospital.
-Circa. 2.8 miles from Aston and Birmingham City University.
-Circa. 2.9 miles from upcoming Curzon Street HS2 Station into Birmingham City Centre.
-Circa. 3.4 miles from Birmingham City Centre
-Circa. 5.9 miles from Birmingham Airport.
The building is largely block cavity wall constructed with some steel frame/beams, with all external walls rendered finish.
Accommodation:
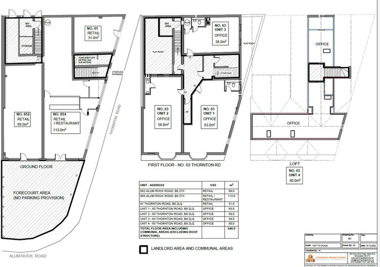
852 Alum Rock Road - Retail restaurant (Franchise - You Want Beef)
With retail area, rear staff area/kitchen, W.C.
Total Net Internal Area - 66.9 sq. metres (720 sq. ft).
854 Alum Rock Road - Let - Retail.
With retail area, W.C, kitchen and office.
Total Net Internal Area - 124.03 sq. metres (1,335 sq. ft).
61 Thornton Road - Let - Retail - Plate Factory.
Retail Area.
Total Net Internal Area - 32.82 sq. metres (353 sq. ft).
63 Thornton Road (First Floor) - Vacant commercial.
Accessed via secure entry door with stairs leading to first floor corridor with doors leading into;
Unit 1, 63 Thornton Road
Main unit area, W.C.
Total Net Internal Area - 70.15 sq. metres (755 sq. ft).
Unit 2, 63 Thornton Road
Customer Reception, W.C., office
Total Net Internal Area - 54.97sq. metres (592 sq. ft).
Unit 3, 63 Thornton Road
Office area, W.C.
Total Net Internal Area - 34.36 sq. metres (370 sq. ft).
Unit 4, 63 Thornton Road (Second Floor)
With first floor hallway, stairs leading to second floor corridor, room one (16.09 sq. metres), kitchenette with W.C., room two (39.97sq. metres) with storeroom off (2.63 sq. metres) (client has advised that waste plumbing is in place which would accommodate W.C).
Total Net Internal Area - 58.69 sq. metres
Tenancy Agreements
Units 2 and 3, 852 Alum Rock Road is let on a 7 year full repair and insuring lease on 23rd March 2022. The tenant is currently paying £34,000 per annum.
61 Thornton Road is let on a 5 year full repair and insuring lease on 11th April 2025 for £9,000 per annum.
Current income = £43,000 per annum.
The rest of the development is offered with vacant possession on completion.
Qualifying letting applicants may be able to claim Small Business Rates Relief. Landlords could direct tenants to make enquiries with the Charging Authority, Birmingham City Council.
Services
852 Alum Rock Road - Own 3 Phase Electricity supply, water, drainage.
854 Alum Rock Road - Own 3 Phase Electricity supply, water, drainage and air conditioning.
Units @ 63 Thornton Road - 3 Phase Electric on sub-metering supply, shared water supply, drainage. All units are sub metered off landlords supply.
61 Thornton Road on sub metering supply and own water supply.
There is a private landlord meter room accessed via secure entry door from Thornton Road.
There are 4 main water supply lines to the building.
There is a single gas line utilised by 63 Thornton Road in part.
Full interlinked fire alarm panel and system of smoke detectors, emergency lighting are installed on site.
These sales details are awaiting vendor approval.
The property is known as 852 Alum Rock Road, Ward End, Birmingham (B8 2TX) on the contract and title documents.
Freehold. Part let/part vacant.
Auction Details
The sale of this property will take place on the stated date by way of Auction Event and is being sold under and Unconditional sale type.
Binding contracts of sale will be exchanged at the point of sale.
All sales are subject to SDL Property Auctions Buyers Terms. Properties located in Scotland will be subject to applicable Scottish law.
Auction Deposit and Fees
The following deposits and non- refundable auctioneers fee apply:
• 10% deposit (subject to a minimum of £5,000)
• Buyers Fee of 1.5% of the purchase price (subject to a minimum of £1,500 inc. VAT)
The Buyers Fee does not contribute to the purchase price, however it will be taken into account when calculating the Stamp Duty Land Tax for the property (known as Land and Buildings Transaction Tax for properties located in Scotland), because it forms part of the chargeable consideration for the property.
There may be additional fees listed in the Special Conditions of Sale, which will be available to view within the Legal Pack. You must read the Legal Pack carefully before bidding.
Additional Information
For full details about all auction methods and sale types please refer to the Auction Conduct Guide which can be viewed on the SDL Property Auctions home page.
This guide includes details on the auction registration process, your payment obligations and how to view the Legal Pack (and any applicable Home Report for residential Scottish properties).
Guide Price & Reserve Price
Each property sold is subject to a Reserve Price. The Reserve Price will be within + or - 10% of the Guide Price. The Guide Price is issued solely as a guide so that a buyer can consider whether or not to pursue their interest. A full definition can be found within the Buyers Terms.

































