Link detached house
This bay-fronted linked detached home is situated on a generously sized plot, featuring an enclosed rear garden, a garage, a driveway, and spacious rooms throughout, along with a separate utility area and three bedrooms.
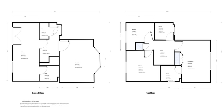
The property briefly consists of an entrance hallway, a downstairs WC, a large bay-fronted lounge, a fitted kitchen/diner with a separate utility room, and French doors that open to the rear garden. On the first floor, you will find the master bedroom equipped with fitted wardrobes and an ensuite shower room, in addition to two more bedrooms and a family bathroom.
Externally, there is a low-maintenance enclosed lawned garden with rear access to the detached garage. The front of the property includes a driveway that provides access to the garage via an up-and-over door.
Rainworth is a village which is split between Newark and Sherwood and the Mansfield districts. It has links to the National Cycle Network which travels through Rainworth into Sherwood Forest. There are many local shops and amenities including a Tesco Express to hand and school options. Python Hill Junior and Infant school, Lake view Primary school and Joseph Whitaker Secondary school. Close proximity to road networks A617, A614, A6191. Nearest railway station is Mansfield. Nearest airports are East Midlands and Doncaster
Construction - Cavity wall
Flood risk - Surface water medium
Mobile coverage - O2, EE and Vodafone available
Satellite and Cable TV - BT and Sky available
Broadband - Standard, Superfast and Ultrafast available
The property is being sold subject to an airspace lease for a term of 25 years from 22 April 2015. Prospective buyers are advised to make all necessary independent enquiries prior to placing their bid as this will be binding.
Freehold. Vacant possession upon completion.
- Heating Supply: Gas Central, Double Glazing
- Electric Supply: Mains Supply
- Water Supply: Mains Supply
- Sewerage Arrangements: Mains Supply
Driveway, Garage
Auction Details
The sale of this property will take place on the stated date by way of Auction Event and is being sold under and Unconditional sale type.
Binding contracts of sale will be exchanged at the point of sale.
All sales are subject to SDL Property Auctions Buyers Terms. Properties located in Scotland will be subject to applicable Scottish law.
Auction Deposit and Fees
The following deposits and non- refundable auctioneers fee apply:
• 10% deposit (subject to a minimum of £5,000)
• Buyers Fee of 1.2% of the purchase price (subject to a minimum of £1,500 inc. VAT)
The Buyers Fee does not contribute to the purchase price, however it will be taken into account when calculating the Stamp Duty Land Tax for the property (known as Land and Buildings Transaction Tax for properties located in Scotland), because it forms part of the chargeable consideration for the property.
There may be additional fees listed in the Special Conditions of Sale, which will be available to view within the Legal Pack. You must read the Legal Pack carefully before bidding.
Additional Information
For full details about all auction methods and sale types please refer to the Auction Conduct Guide which can be viewed on the SDL Property Auctions home page.
This guide includes details on the auction registration process, your payment obligations and how to view the Legal Pack (and any applicable Home Report for residential Scottish properties).
Guide Price & Reserve Price
Each property sold is subject to a Reserve Price. The Reserve Price will be within + or - 10% of the Guide Price. The Guide Price is issued solely as a guide so that a buyer can consider whether or not to pursue their interest. A full definition can be found within the Buyers Terms.





















