fbpx
My Favourites
Free sales valuation
We've unified our Auction Brands - Visit our new website here

Plots 1-3, Land off Ladywood Road, Ilkeston DE7 4FJ

Lot no: 28 Sold Prior to Auction
 

Guide Price £75,000+ plus fees

UnconditionalOn the fall of the hammer, the successful bidder will be legally bound to purchase the property. The successful bidder must immediately exchange contracts and pay the applicable deposit and Buyer’s Fee stated on the property description, both of which are non-refundable. The deposit contributes to the purchase price. The Buyer’s Fee does not contribute to the purchase price. Completion must take place usually within 30 days, unless the Special Conditions of Sale within the legal pack state otherwise.

Thursday 24th April 2025

9.00am
Key Features
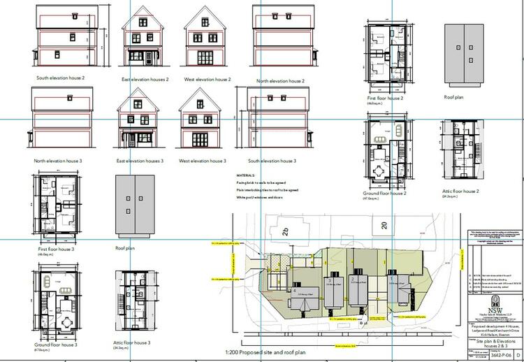
  • Planning consent for three x four bedroom detached properties
  • 0224/0004 (July 2024) Erewash Borough Council
  • All conditions satisfied
  • Ready to go site
  • EPC Rating: Exempt
Sold Prior to Auction

We've unified our Auction Brands

If you're interested in this lot visit BTG Eddisons Property Auctions to book a viewing, submit an offer, send an enquiry and more.

View more details about this property on our new auction website

Land

Property Description:

A freehold parcel of land with planning consent for the creation of three, four bedroom detached homes with associated parking located off Ladywood Road, Ilkeston, conveniently situated in a residential area between Derby and Nottingham.

The land is being sold with the benefit of planning permission 0224/0004 (July 2024)
Erewash Borough Council. Interested parties are advised to visit their planning portal page for more information.

We have been advised that the site has planning for 4 properties with the owner retaining plot 4 (due for a June completion date) and plots 1, 2 and 3 are included in the lot. The buyer will have the benefit of the driveway for plot 3 completed by the vendor and the vendor confirms that all building regs drawings are complete, conditions have been removed and the site is ready to commence straight away. Prospective buyers are advised to make all necessary independent enquiries prior to placing their bid as this will be binding.

We feel this poses a very good opportunity for a builder with many of the associated costs and risks already taken care of. The legal pack contains more information and we encourage interested parties to inspect the pack prior to bidding.

The vendor is on site most days managing the build of the retained plot and we encourage interested parties to take this opportunity to visit the site and ask any questions prior to making an offer or bidding on the day of the auction.

The site is situated in this established residential area which has a number of local amenities and facilities and is within easy reach of all those provided by Ilkeston as well as being only a few miles away from both Nottingham and Derby.

Note: The images on our sales particulars are CGI.

Tenure:

Freehold. Vacant possession upon completion.




Auction Details

The sale of this property will take place on the stated date by way of Auction Event and is being sold under an Unconditional sale type.

Binding contracts of sale will be exchanged at the point of sale.

All sales are subject to SDL Property Auctions Buyers Terms. Properties located in Scotland will be subject to applicable Scottish law.


Auction Deposit and Fees

The following deposits and non- refundable auctioneers fees apply:

• 5% deposit (subject to a minimum of £5,000)

• Buyers Fee of 2% of the purchase price inc. VAT. 

The Buyers Fee does not contribute to the purchase price, however it will be taken into account when calculating the Stamp Duty Land Tax for the property (known as Land and Buildings Transaction Tax for properties located in Scotland), because it forms part of the chargeable consideration for the property.

There may be additional fees listed in the Special Conditions of Sale, which will be available to view within the Legal Pack. You must read the Legal Pack carefully before bidding.


Additional Information

For full details about all auction methods and sale types please refer to the Auction Conduct Guide which can be viewed on the SDL Property Auctions home page.

This guide includes details on the auction registration process, your payment obligations and how to view the Legal Pack (and any applicable Home Report for residential Scottish properties).


Guide Price & Reserve Price

Each property sold is subject to a Reserve Price. The Reserve Price will be within + or - 10% of the Guide Price. The Guide Price is issued solely as a guide so that a buyer can consider whether or not to pursue their interest. A full definition can be found within the Buyers Terms.
We've Unified Our Auction Brands