Terraced House
This terraced house on Market Street in Clay Cross offers an ideal investment opportunity. With two bedrooms and a well-maintained garden at the rear.
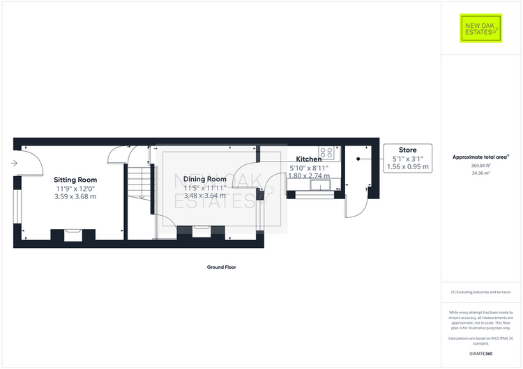
Inside, you will find a neutral decor that provides a blank canvas for personalisation. The house includes a cellar, offering additional storage space or potential for further development. Its layout is practical and functional, catering to everyday living needs.
Outside, there is a lovely, well tendered garden space with a brick store and gated access to parking spaces at the rear.
Located in Clay Cross, the property benefits from its proximity to local amenities and transport links. The area is known for its community feel and has a range of schools, parks, and shopping options nearby. This house represents an opportunity to own a home in a convenient location without breaking the bank.
Construction - Solid brick
Mobile coverage - O2, EE, Three and Vodafone
Satellite and cable TV - BT and Sky
Broadband - Standard, Superfast and Ultrafast
The vendor has provided us with the below room measurements.
Freehold. Vacant possession upon completion.
- Heating Supply: Double Glazing, Gas Central
- Electric Supply: Mains Supply
- Water Supply: Mains Supply
- Sewerage Arrangements: Mains Supply
On Street
Auction Details
The sale of this property will take place on the stated date by way of Auction Event and is being sold under and Unconditional sale type.
Binding contracts of sale will be exchanged at the point of sale.
All sales are subject to SDL Property Auctions Buyers Terms. Properties located in Scotland will be subject to applicable Scottish law.
Auction Deposit and Fees
The following deposits and non- refundable auctioneers fee apply:
• 10% deposit (subject to a minimum of £5,000)
• Buyers Fee of 1.2% of the purchase price (subject to a minimum of £1,500 inc. VAT)
The Buyers Fee does not contribute to the purchase price, however it will be taken into account when calculating the Stamp Duty Land Tax for the property (known as Land and Buildings Transaction Tax for properties located in Scotland), because it forms part of the chargeable consideration for the property.
There may be additional fees listed in the Special Conditions of Sale, which will be available to view within the Legal Pack. You must read the Legal Pack carefully before bidding.
Additional Information
For full details about all auction methods and sale types please refer to the Auction Conduct Guide which can be viewed on the SDL Property Auctions home page.
This guide includes details on the auction registration process, your payment obligations and how to view the Legal Pack (and any applicable Home Report for residential Scottish properties).
Guide Price & Reserve Price
Each property sold is subject to a Reserve Price. The Reserve Price will be within + or - 10% of the Guide Price. The Guide Price is issued solely as a guide so that a buyer can consider whether or not to pursue their interest. A full definition can be found within the Buyers Terms.

















