fbpx
My Favourites
Free sales valuation
We've unified our Auction Brands - Visit our new website here

122 - 124 Nottingham Road, Eastwood, Nottingham NG16 3GD

Lot no: 174 Re-entry to a future auction
 

Guide Price £275,000+ plus fees

UnconditionalOn the fall of the hammer, the successful bidder will be legally bound to purchase the property. The successful bidder must immediately exchange contracts and pay the applicable deposit and Buyer’s Fee stated on the property description, both of which are non-refundable. The deposit contributes to the purchase price. The Buyer’s Fee does not contribute to the purchase price. Completion must take place usually within 30 days, unless the Special Conditions of Sale within the legal pack state otherwise.

Thursday 27th March 2025

9.00am
Key Features
  • Freehold Vacant commercial unit with Full Planning 24/00786/FUL
  • Planning for the creation of 3 commercial units to Ground floor
  • Planning for the creation of a 3 bed and a four bed apartment above
  • NIA Approximately 3,465 sq.ft.
  • Prime location with large frontage
  • EPC Rating: C C
Re-entry to a future auction

We've unified our Auction Brands

If you're interested in this lot visit BTG Eddisons Property Auctions to book a viewing, submit an offer, send an enquiry and more.

View more details about this property on our new auction website

Commercial Property

Property Description:

Two freehold vacant commercial units with frontage along the busy Nottingham Road and Queens Road North.

The premises benefit from full planning consent for the creation of 3 retail units to the ground floor and two residential units above (4 bed and a 3 bed apartment). We feel these could operate as an HMO although this may be subject to additional planning requirements and or licence.

Interested parties are advised to see planning portal of Broxtowe Borough Council Ref 24/00786/FUL.

Current Configuration:
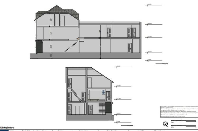
The unit extends over three storeys and benefits from large glass frontage display windows with entrances from Nottingham Road and Queens Road North, all windows and doors have roller shutters.

The ground floor sales shop extends to approximately 1050 Sq. ft. with separate kitchen facilities, separate w/c. The central staircase leads to the first floor which has a shop area of approximately 1216 sq. ft. with changing rooms, a further storage area and office with access to the fire escape, staircase leading to the second floor.

The second floor comprises three office/storage rooms. To the rear of the property there are three garages each with a car parking space.

The unit has A1/A2 Retail and Financial/Professional services use.

The second commercial unit has a display window onto the busy Nottingham Road and having the benefit of roller shutters. The units comprises of a main trading area of approximately of 310 sq. ft. with a rear storage area of approximately of 77 sq. ft. There is rear access and a w/c.

The unit is A1/A2 Retail and Financial/Professional services.

Over the top of the shops there are 2 flats, one 4 bed and one 3 bed. It is essentially a HMO and all rooms have their own ensuites, own entrance, and shared kitchen.

Sales Area 18.08m (59ft 4) x 5.05m (16ft 7 ) Max.
Display windows on the busy Nottingham Road and Queens Road North customer door from Nottingham Road and Queens Road North. Laminate floor covering, access to the kitchen, ground floor storage/changing room and w/c.

Kitchen 3.71m (12ft 2) x 1.47m (4ft 10)
With window and stainless steel sink unit.

Storage/Changing Room
W/C
Having window, low flush w/c/ and wash hand basin.

First Floor/Sales Area
Having windows to the front elevation and windows to the side elevation. Three Changing rooms and w/c. Laminate floor covering. Access to stoor/office.

W/C
Having window, low flush w/c and wash hand basin.

Store/Office 3.73m (12ft 3) x 3.66m (12ft 0)
Windows to the front elevation, access to the inner hall.

Inner Hall
Staircase to the first floor, access to office.

Office 3.71m (12ft 2) x 3.66m (12ft 0)
Office room, with access to the fire escape.

Second Floor:
Store Room 2.62m (8ft 7) x 1.85m (6ft 1)
Store Room 3.66m (12ft 0) x 1.83m (6ft 0)
Store Room 4.88m (16ft 0) x 3.76m (12ft 4)
Store Room 4.95m (16ft 3) x 3.43m (11ft 3)
Second Commercial Unit 8.43m (27ft 8) x 3.35m (11ft 0)
Display window to the front elevation on to Nottingham Road Access, customer door to the front elevation. Access to the storage area.

Storage 4.57m (15ft 0) x 3.12m (10ft 3)
Rear Lobby
Access to w/c and fire door to the rear elevation. Staircase leading to the first floor storage area.

Tenure:

Freehold. Vacant possession upon completion.




Auction Details

The sale of this property will take place on the stated date by way of Auction Event and is being sold under an Unconditional sale type.

Binding contracts of sale will be exchanged at the point of sale.

All sales are subject to SDL Property Auctions Buyers Terms. Properties located in Scotland will be subject to applicable Scottish law.


Auction Deposit and Fees

The following deposits and non- refundable auctioneers fees apply:

• 5% deposit (subject to a minimum of £5,000)

• Buyers Fee of 2.4% of the purchase price inc VAT.

The Buyers Fee does not contribute to the purchase price, however it will be taken into account when calculating the Stamp Duty Land Tax for the property (known as Land and Buildings Transaction Tax for properties located in Scotland), because it forms part of the chargeable consideration for the property.

There may be additional fees listed in the Special Conditions of Sale, which will be available to view within the Legal Pack. You must read the Legal Pack carefully before bidding.


Additional Information

For full details about all auction methods and sale types please refer to the Auction Conduct Guide which can be viewed on the SDL Property Auctions home page.

This guide includes details on the auction registration process, your payment obligations and how to view the Legal Pack (and any applicable Home Report for residential Scottish properties).


Guide Price & Reserve Price

Each property sold is subject to a Reserve Price. The Reserve Price will be within + or - 10% of the Guide Price. The Guide Price is issued solely as a guide so that a buyer can consider whether or not to pursue their interest. A full definition can be found within the Buyers Terms.
We've Unified Our Auction Brands