House of Multiple Occupation
A superb 6 bedroom 2 Bathroom HMO property in prime letting location.
The property comprises of an attractive, bay fronted villa with accommodation arranged over 3 floors.
It is situated in an extremely popular location, just across the road from 'Owens Park', the UoM student halls of residence, along with having a good range of local amenities and excellent public transport links.
Fully HMO compliant with license in place.
Offered fully let for the 2024-2025 academic year.
Current Rental Income-
£3198 pcm / £38,376 per annum - excluding bills.
Potential Rental Income for 2025-2026 academic year-
£3640 pcm / £43,680 per annum- Excluding bills.
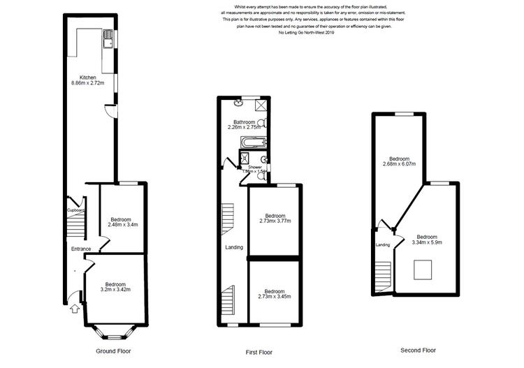
The property briefly comprises of: Entrance hallway, two ground floor bedrooms and a long kitchen/living room. To the first floor there are two bedrooms and a bathroom and shower room, and to the top floor there are two further bedrooms. To the rear there is a small yard.
Reception Hallway, 29ft Living/Dining/ Kitchen, Bedroom 1, Bedroom 2
Landing, Bedroom 3, Bedroom 4, Bathroom, Shower Room
Landing, Bedroom 5, Bedroom 6
Garden to front and small yard to rear.
O2, EE, Three and Vodafone are available in this location.
BT, Sky and Virgin are available in this location.
Standard 9 mbps. Superfast 80 mbps. Ultrafast 1000 mbps.
Solid brick, as built, no insulation (assumed). Information taken from EPC.
These sales details are awaiting vendor approval.
Freehold. Subject to tenancy.
- Heating Supply: Double Glazing, Gas Central
- Electric Supply: Mains Supply
- Water Supply: Mains Supply
- Sewerage Arrangements: Mains Supply
On Street
Auction Details
The sale of this property will take place on the stated date by way of Auction Event and is being sold under an Unconditional sale type.
Binding contracts of sale will be exchanged at the point of sale.
All sales are subject to SDL Property Auctions Buyers Terms. Properties located in Scotland will be subject to applicable Scottish law.
Auction Deposit and Fees
The following deposits and non- refundable auctioneers fees apply:
• 5% deposit (subject to a minimum of £5,000)
• Buyers Fee of 2.4% of the purchase price (subject to a minimum of £6,000 inc. VAT).
The Buyers Fee does not contribute to the purchase price, however it will be taken into account when calculating the Stamp Duty Land Tax for the property (known as Land and Buildings Transaction Tax for properties located in Scotland), because it forms part of the chargeable consideration for the property.
There may be additional fees listed in the Special Conditions of Sale, which will be available to view within the Legal Pack. You must read the Legal Pack carefully before bidding.
Additional Information
For full details about all auction methods and sale types please refer to the Auction Conduct Guide which can be viewed on the SDL Property Auctions home page.
This guide includes details on the auction registration process, your payment obligations and how to view the Legal Pack (and any applicable Home Report for residential Scottish properties).
Guide Price & Reserve Price
Each property sold is subject to a Reserve Price. The Reserve Price will be within + or - 10% of the Guide Price. The Guide Price is issued solely as a guide so that a buyer can consider whether or not to pursue their interest. A full definition can be found within the Buyers Terms.









