Maisonette
A spacious duplex Maisonette in a highly desirable location within Croydon.
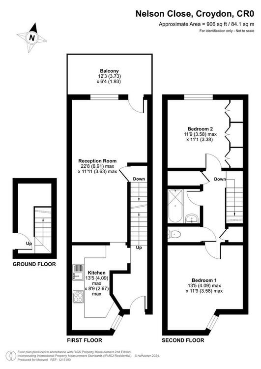
The property offer spacious accommodation over two floors along with its own private ground floor entrance.
Offering a large lounge/diner, 2 bedrooms and large balcony/terrace.
The location is highly desirable, with Croydon station just a short distance away, offering fast connections to London Bridge, Victoria, and Gatwick Airport.
Additionally, the thriving town centre is close by with a great range of shops, bars and restaurants.
An ideal investment opportunity with estimated rental value of £1450 pcm / £17,400 per annum, after slight refurbishment.
The property is offered leashold with 84 years remaining. The council are the freeholder and a lease extension is quoted at £3100 plus £1000 legal fees.
The service charge is around £190 pcm and includes heating.
Reception Hallway, Store Cupboard
Landing, Large Lounge / Diner, Kitchen, Balcony / Terrace
Landing, Bedroom One, Bedroom Two, Bathroom
125 years from 28 January 1983. Any ground rent and service charge review periods will be confirmed in the lease documents within the legal pack.
02, EE, Three and Vodafone are available in this location.
BT, Sky and Virgin are available in this location.
Standard 12 mbps. Superfast 79 mbps. Ultrafast 1000 mbps.
Rivers and Seas - No Risk. Surface Water - Medium
Cavity wall, as built, no insulation (assumed). Information taken from EPC.
Leasehold. Vacant possession upon completion.
£10
83
£2,300
On Street
Auction Details
The sale of this property will take place on the stated date by way of Auction Event and is being sold under an Unconditional sale type.
Binding contracts of sale will be exchanged at the point of sale.
All sales are subject to SDL Property Auctions Buyers Terms. Properties located in Scotland will be subject to applicable Scottish law.
Auction Deposit and Fees
The following deposits and non- refundable auctioneers fees apply:
• 5% deposit (subject to a minimum of £5,000)
• Buyers Fee of £3,600 inc VAT.
The Buyers Fee does not contribute to the purchase price, however it will be taken into account when calculating the Stamp Duty Land Tax for the property (known as Land and Buildings Transaction Tax for properties located in Scotland), because it forms part of the chargeable consideration for the property.
There may be additional fees listed in the Special Conditions of Sale, which will be available to view within the Legal Pack. You must read the Legal Pack carefully before bidding.
Additional Information
For full details about all auction methods and sale types please refer to the Auction Conduct Guide which can be viewed on the SDL Property Auctions home page.
This guide includes details on the auction registration process, your payment obligations and how to view the Legal Pack (and any applicable Home Report for residential Scottish properties).
Guide Price & Reserve Price
Each property sold is subject to a Reserve Price. The Reserve Price will be within + or - 10% of the Guide Price. The Guide Price is issued solely as a guide so that a buyer can consider whether or not to pursue their interest. A full definition can be found within the Buyers Terms.










