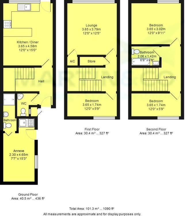
End of terrace house
A vacant freehold three storey property with converted annexe offering excellent investment potential with four bedrooms and potential rental income in excess of £18k per year.
This end terrace property offers huge potential to add value and generate a handsome return. The property offers a variety of investment opportunities as it could be rented out as a single dwelling, leased out for supportive living or serviced accommodation. Viewings are highly recommended to appreciate the options this dwelling offers.
This versatile home has a ground floor annexe with its own shower room, a kitchen/living/dining room, the upper floors consist or 3/4 further bedrooms and a family bathroom.
Located in an envious residential location, it has easy access to the city centre as well as an array of local shops and amenities.
Construction Material: Standard brick. Heating: Mains gas. Coverage: Broadband - Standard, Ultrafast and Superfast is available in this location. Mobile signal - O2, Vodafone and Three show as high in this area, and EE as medium. Satellite and Cable - BT, Sky and Virgin show as available in this area.
These sales details are awaiting vendor approval.
Freehold. Vacant possession upon completion.
- Heating Supply: Gas
- Electric Supply: Mains Supply
- Water Supply: Mains Supply
- Sewerage Arrangements: Mains Supply
Driveway
Auction Details
The sale of this property will take place on the stated date by way of Auction Event and is being sold under an Unconditional sale type.
Binding contracts of sale will be exchanged at the point of sale.
All sales are subject to SDL Property Auctions Buyers Terms. Properties located in Scotland will be subject to applicable Scottish law.
Auction Deposit and Fees
The following deposits and non- refundable auctioneers fees apply:
• 5% deposit (subject to a minimum of £5,000)
• Buyers Fee of 4.8% of the purchase price for properties sold for up to £250,000, or 3.6% of the purchase price for properties sold for over £250,000 (in all cases, subject to a minimum of £6,000 inc. VAT). For worked examples please refer to the Auction Conduct Guide.
The Buyers Fee does not contribute to the purchase price, however it will be taken into account when calculating the Stamp Duty Land Tax for the property (known as Land and Buildings Transaction Tax for properties located in Scotland), because it forms part of the chargeable consideration for the property.
There may be additional fees listed in the Special Conditions of Sale, which will be available to view within the Legal Pack. You must read the Legal Pack carefully before bidding.
Additional Information
For full details about all auction methods and sale types please refer to the Auction Conduct Guide which can be viewed on the SDL Property Auctions home page.
This guide includes details on the auction registration process, your payment obligations and how to view the Legal Pack (and any applicable Home Report for residential Scottish properties).
Guide Price & Reserve Price
Each property sold is subject to a Reserve Price. The Reserve Price will be within + or - 10% of the Guide Price. The Guide Price is issued solely as a guide so that a buyer can consider whether or not to pursue their interest. A full definition can be found within the Buyers Terms.














