Residential Development
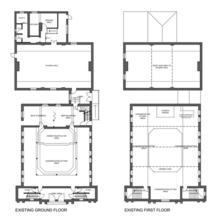
A former Methodist Chapel with planning permission pending to convert into 13 Self contained apartments.
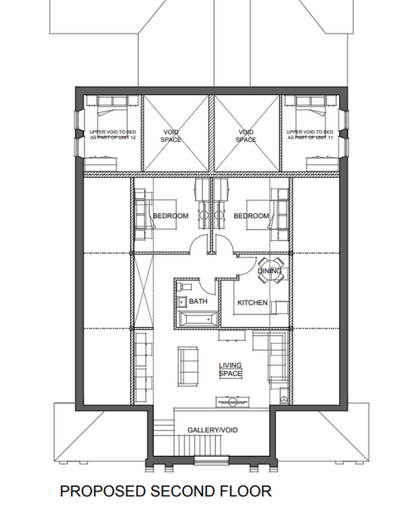
A rare opportunity to redevelop this charming period property into a superb range of 1 and 2 bedroom apartment over 3 floors.
Planning permission pending Ref- AVA/2023/0493. Further information and drawings are available on Amber Valley Council Website.
The site will comprise 11x One bedroom flats, 2x Two bedroom flats along with amenity/ garden space, bin store and bike racks.
Well placed in the popular village of Kilburn which gives excellent access to the A38 and therefore Derby, Belper and Duffield are all close by.
An ideal build to rent with estimated rental income circa £90,000 per annum once converted.
Although the approved planning for 13 apartments does include a S106 contribution, this may be appealed to reduce or remove the obligation. Alternatively, amending the scheme to 9 apartments could remove it entirely. Buyers should conduct their own due diligence and seek independent legal and planning advice.
Freehold. Vacant possession upon completion.
- Electric Supply: Mains Supply
- Water Supply: Mains Supply
- Sewerage Arrangements: Mains Supply
Auction Details
The sale of this property will take place on the stated date by way of Auction Event and is being sold under and Unconditional sale type.
Binding contracts of sale will be exchanged at the point of sale.
All sales are subject to SDL Property Auctions Buyers Terms. Properties located in Scotland will be subject to applicable Scottish law.
Auction Deposit and Fees
The following deposits and non- refundable auctioneers fee apply:
• 10% deposit (subject to a minimum of £5,000)
• Buyers Fee of 1.2% of the purchase price (subject to a minimum of £1,500 inc. VAT)
The Buyers Fee does not contribute to the purchase price, however it will be taken into account when calculating the Stamp Duty Land Tax for the property (known as Land and Buildings Transaction Tax for properties located in Scotland), because it forms part of the chargeable consideration for the property.
There may be additional fees listed in the Special Conditions of Sale, which will be available to view within the Legal Pack. You must read the Legal Pack carefully before bidding.
Additional Information
For full details about all auction methods and sale types please refer to the Auction Conduct Guide which can be viewed on the SDL Property Auctions home page.
This guide includes details on the auction registration process, your payment obligations and how to view the Legal Pack (and any applicable Home Report for residential Scottish properties).
Guide Price & Reserve Price
Each property sold is subject to a Reserve Price. The Reserve Price will be within + or - 10% of the Guide Price. The Guide Price is issued solely as a guide so that a buyer can consider whether or not to pursue their interest. A full definition can be found within the Buyers Terms.












